Wohnquartier Gasselstiege, Münster

Mit der Neubebauung des ehemaligen TÜV-Geländes im Kreuzungsbereich Steinfurter Straße / Yorkring stellt sich einerseits die Herausforderung in emissions- und verkehrslärmbelasteter Lage zu bauen, andererseits bietet gerade diese Lage durch ihre gute Anbindung an den öffentlichen Nahverkehr und der Nähe zu dem neu errichteten Einzelhandel das Potential, ein attraktives Wohnangebot zu schaffen.

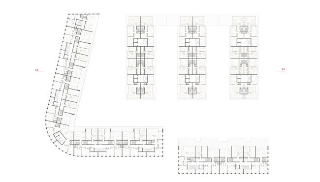
Der Entwurf sieht vor, durch die Setzung von zwei großmaßstäblichen, linearen Baukörpern entlang der Steinfurter Straße und entlang des Yorkrings eine starke städtebauliche Kante auszubilden und damit das Quartier zum zweiten Stadtring hin baulich abzuschließen. Dadurch entsteht ein zweiseitig gefasster Innenraum, mit viergeschossiger Zeilenbebauung. Durch die Ausrichtung der Zeilenbebauung quer zur Gasselstiege und die Verbindung ihrer Stirnseiten mittels Loggien nehmen die Zeilen die Orientierung der angrenzenden Bestandsgebäude auf und schaffen eine Durchlässigkeit zur ruhigen Gasselstiege und dem Inneren des Quartiers. Außerdem bietet sie bei guter Orientierung der Wohnräume nach Südosten bzw. Nordwesten ein hohes Maß an baulicher und damit wirtschaftlicher Ausnutzung des Grundstücks.

Die starke Linearität der fünfgeschossigen Randbebauung findet durch die Ausbildung eines Hochpunktes im Kreuzungsbereich Yorkring / Gasselstiege ihren baulichen Abschluss, der als Gelenk zwischen Randbebauung und Zeilenbebauung fungiert und als markantes städtebauliches Zeichen entlang des Stadtringes wirkt. Dabei grenzt die Randbebauung den Innenbereich des Wettbewerbgebietes vom Lärm der beiden Bundesstraßen ab und schafft somit die Voraussetzungen für die Etablierung von geschütztem Wohn- und Freiraum.

Der Versatz der Baufluchten wird im Bereich Steinfurter Straße zur Erschließung der erdgeschossigen Kita genutzt und definiert den Zugang der Durchwegung und Erschließung des Grundstücks, im Bereich der Gasselstiege findet durch das Abrücken der Zeilen eine Weitung des Straßenraumes statt, die sich in die Abfolge aus kleinen, dreieckigen Freiflächen entlang der Gasselstiege einreiht.

Wie bereits die städtebauliche Konzeption eine Großmassstäblichkeit, Geschlossenheit und Abgrenzung nach außen und Offenheit und Porosität nach innen vorsieht, so spiegelt sich die Thematik auch im Gebäudemassstab wider. Während die Innenseite der Randbebauung, sowie die Fassaden der Zeilen von Vor- und Rücksprüngen, Balkonen und Loggien geprägt sind und sich somit mit dem umgebenden Freiraum verzahnen, ist die Randbebauung nach außen durch eine kraftvoll-strenge Klinkerfassade geprägt und wird damit der Urbanität des Ortes gerecht. Die stehenden Fensterformate unterstreichen diesen Eindruck und ermöglichen in ihrer Ausführung als Kastenfenster trotz Lärmbelastung eine gute Durch- bzw. Querlüftung. Um eine klare Abgrenzung der privaten Freiflächen, wie dem Außenbereich der Kita und den im Ergeschoss der Wohnungen vorgelagerten Privatgärten zu gewährleisten sind diese, wie auch die Ergeschosswohnungen selbst, durch einen Sockel vom Niveau der Straße bzw. der öffentlichen Wege abgesetzt.

Art

Begrenzter Wettbewerb, 2014

Ort

Münster

Auslober

Wohn+Stadtbau Münster GmbH

Bearbeitung

M. Dürr | H. Baurmann | T. Quynh | T. Nitschke

Modellbau

M. Steigerwald

Publikationen

wettbewerbe aktuell 02.10.2014
competitionline 22.10.2014