Kleiner Exer, Ettlingen

Der Entwurf zur Neubebauung des Kleinen Exerzierplatzes Ettlingen lehnt sich an die vorgefundene Struktur des Wohngebiets südlich der Albtalbahntraße an und führt sie fort. Während die Altstadt nördlich der Bahn ein unregelmäßiges Straßennetz aufweist, haben wir es im Bearbeitungsgebiet mit einer typischen Arrondierung zu tun, die durch eine offene Blockrand-Bebauung gekennzeichnet ist.

Die dabei entstehenden großzügigen Höfe, locker durchgrünt, prägen das Quartier.

Die Nutzungsvorgaben für den "Kleinen Exer" stellen eine Mischung dar aus einer zentrumsartigen Geschäftsmassierung einerseits und einem vielfältigen Wohnungsangebot andererseits. Die hohe Flexibilität der vorgefundenen Struktur erlaubt es, diese scheinbaren Gegensätze formal zusammenzufassen und damit die quartierstypischen Kennzeichen fortzuschreiben.

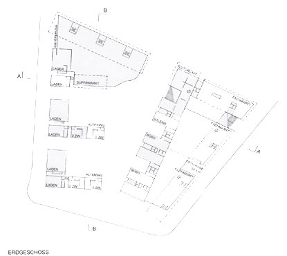
Das Planungsgebiet wird in zwei große Wohnhöfe geteilt, die von unterschiedlichen Gebäudetypen umgeben sind. Dem Nutzungsspektrum entsprechend werden sowohl Block- als auch Einzelhausbebauungen ausgebildet. Die Mitte wird von einem Quartiersplatz gebildet, der unterschiedlichen, auch kulturellen Aktivitäten Raum gibt. Der Busbahnhof bleibt an seiner jetzigen Stelle, die kurze Umsteigewege zum Albtalbahnhof erlaubt, und erhält mit einer transparenten Haltestellenüberdachung neue Signifikanz.

Der südliche Bahnhofsvorplatz wird durch eine ruhige Geschäftshaus-Bebauung begrenzt; ihr vorgelagert sind Parkplätze im Grünzug an der Bahntrasse sowie Taxistandplätze vor dem Supermarkt, der sich erdgeschossig bis in die Wohnbebauung erstreckt. Der östliche Wohnhof weist eine Quartiersgarage auf, darüber ein Ladengeschoss, dessen Dach begrünt und damit für die Bewohner nutzbar gemacht wird. Die Fachmärkte an der Wilhelmstraße erstrecken sich über zwei Etagen, darüber befinden sich Wohnungen unterschiedlicher Größe. An der Ecke zum Bahnhofplatz sind kulturelle Nutzungen vorgesehen, die Einzelhäuser weisen Büros und größere Wohnungen auf.

Die westliche Bebauung ist offener gehalten und besteht aus Laubenganghäusern, die durch ihre Winkelstellung kleine Höfe mit Mietergärten ausbilden und vornehmlich altengerechte Kleinwohnungen beinhalten. Im Erdgeschoss zum Drachenrebenweg sind Läden untergebracht, im nördlichen Teil befindet sich die Anlieferung des Supermarkts.

Der Kernbereich des Gebiets wird für den Autoverkehr gesperrt und ist den Bewohnern vorbehalten. Der Bahnhofplatz ist im östlichen Teil nur für Busse, im westlichen dagegen auch für Kurzparker freigegeben. Der Busbahnhof ist für sechs Busse ausgelegt, die im Einrichtungsverkehr bedienen oder auch wenden können. Eine Fußgängerunterführung bindet das Quartier optimal an die Innenstadtbereiche und den Stadtgarten an. Die Durchlüftung ist durch die lockere Struktur in allen Richtungen gewährleistet. Die eher städtisch geprägten Strukturen des nördlichen und östlichen Bereichs lösen sich nach Süden und Westen hin entsprechend der angrenzenden Bebauung auf.

Art

Ideenwettbewerb, 1994

Ort

Ettlingen

Auslober

Stadt Ettlingen

Bearbeitung

H. Baurmann

Modellbau

I. Knapp

Publikationen

wettbewerbe aktuell 2/1995