Umgestaltung Ortsmitte, Biberach

Die Respektierung und Stärkung der dörflichen Struktur des Ortskerns ist das Leitthema unseres Wettbewerbsbeitrags. Typische Merkmale der Siedlungsstruktur werden herausgearbeitet, die Umgebung dient als Maßstab. Die Umnutzung von Bestandsimmobilien hat Vorrang vor dem Neubau.

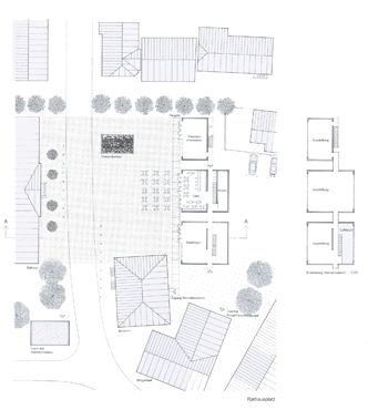
Während der Rathausplatz als Träger der Funktionen Rathaus, Museum und Fremdenverkehrsamt eine repräsentative Wirkung erhält, bilden die Raumfolgen der Brauereistraße mit ihren Geschäften, dem Jugendtreff und dem Altersheim alltägliches Ortsleben ab. Platzfolgen wirken in der Quartiersdurchwegung retardierend gegenüber den Hauptstraßen.

Öffentlicher Straßenraum wird von dem privaten Binnenraum deutlich unterschieden, es erfolgt eine klare Differenzierung in Fahr- und Fußverkehr. Während die schnelle Verbindung Nord-Süd erfolgt (Kfz, Bahn, Fluss), sind die langsameren Durchwegungen Ost-West gerichtet (Anlieger, Fußgänger). Daher legen wir auf eine verstärkte Anordnung von Läden an der Ost-West-Verbindung Wert. Typologisch sollte der Einzelhandel weiterhin gestreut bleiben und nicht konzentriert werden.

Die Kreuzungspunkte der einzelnen Wege werden durch die grünräumliche Planung akzentuiert. Räumliche Aufweitungen werden zu Plätzen ausformuliert, ihre Belebung erfolgt vorzugsweise durch gastronomische Einrichtungen. Binnenbereiche bleiben möglichst unversiegelt.

Die Türme des Ortes (Kirche, Jugendturm, Stadtschreiberturm) fungieren als Gelenke. Hinter dem Geschäfts- und Dienstleistungs-Riegel befindet sich eine Wohnsiedlung mit Gartenhöfen in zweiter Reihe. Auch das Altenpflegeheim verfügt über derart introvertierte Binnenbereiche.

Art

Ideenwettbewerb, 2000

Ort

Biberach (Baden)

Auslober

Gemeinde Biberach

Bearbeitung

H. Baurmann | S. Dürr | P. Zöller