Geigenbauschule, Mittenwald

Die Erweiterung der Geigenbauschule in Mittenwald verwendet eine Reihe typischer Merkmale der vorhandenen Baustruktur, so die Linearität der Lehrgebäude, die Raumbildung um einzelne Höfe oder das flachgeneigte alpenländische Blechdach.

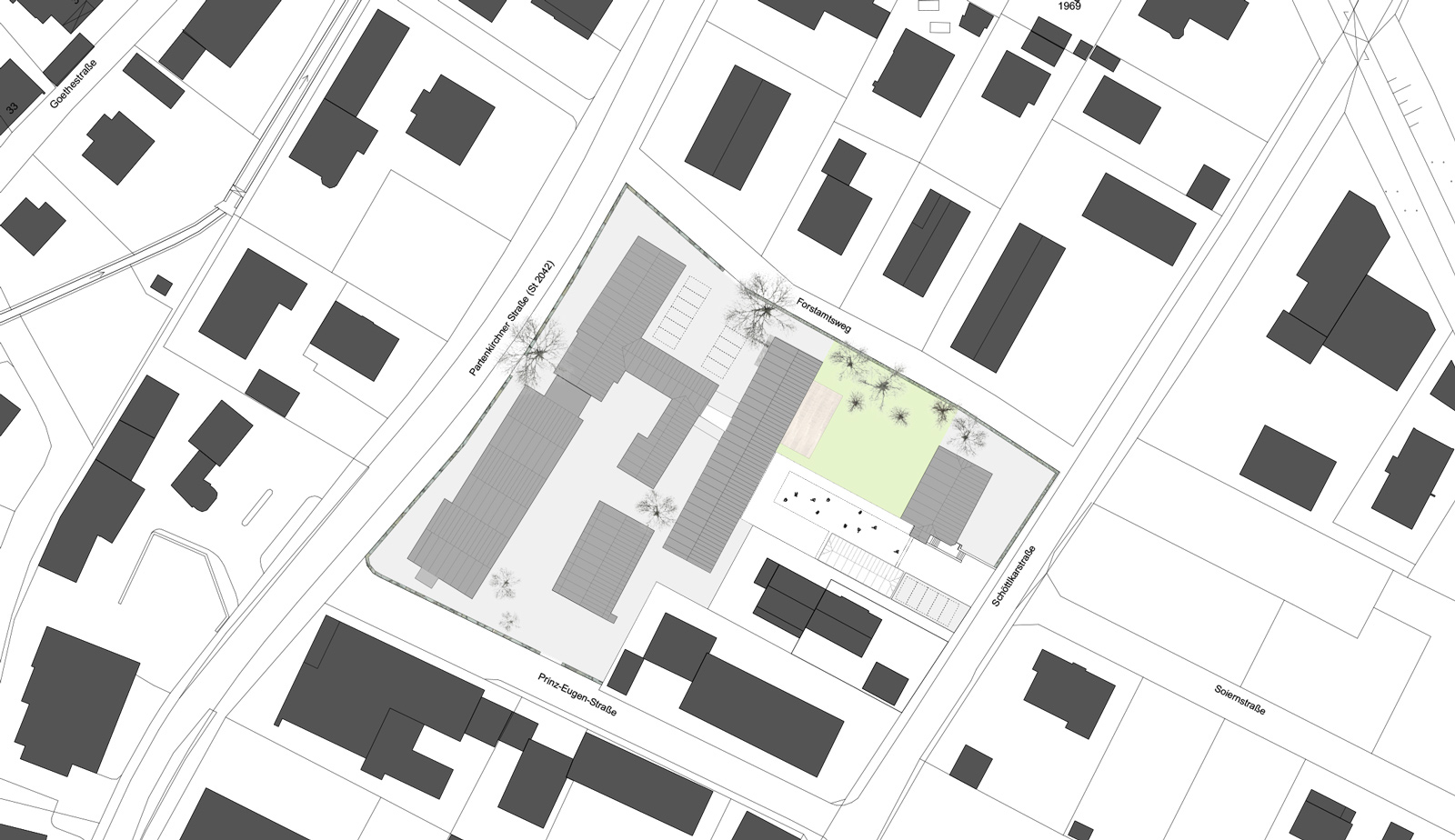
Der lange, schmale Baukörper rückt nahe an den Bestand heran, um ein deutlich wahrnehmbares Gegenüber zum alten Forstamtsgebäude, das zukünftig der Verwaltung dienen soll, zu schaffen. Es entsteht eine grosse Freifläche, die zwei Funktionen erhält: sie wird zum Eingangshof der Geigenbauschule und als Campuswiese das Herzstück der Gesamtanlage.

Der künftige Hauptzugang zur Schule wird an die Schöttlkarstraße verlagert, die Adressbildung erfolgt durch das Ensemble von Verwaltungs-Villa, Jugendstiltorbogen und zugehöriger Remise. Durch einen Kieshof, der dreiseitig von einem pergolenähnlichen Dach eingefasst wird, unter dem sich die Radabstellplätze befinden, gelangt der Besucher in das Foyer des Neubaus; hier befindet sich auch die Mensa, deren Freifläche sich auf die Campuswiese orientiert, mit Blick auf die Villa, dahinter die imposante Karwendelspitze.

 Das Freistellen des historischen Gebäudes trägt massgeblich zur Identität der Schule bei, die Fassade der Villa wird Teil des Freiraumkonzepts. Der überdachte, saisonal zu schliessende Laubengang bindet die Verwaltung an den Neubau ohne größere bauliche Eingriffe in die Fassade an.

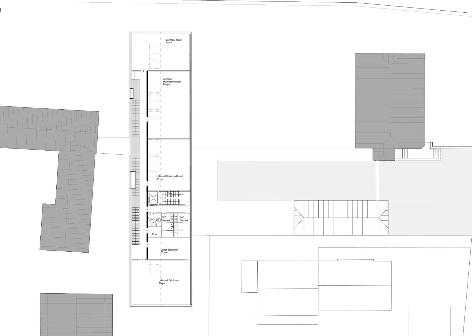
 Der Erweiterungsbau ist über drei oberirdische Stockwerke linear organisiert: im Erdgeschoss Eingang, Mensa und Akustiklabor, im Obergeschoss die physikalischen Fachräume, unterm Dach – mit Zenitalbelichtung – die Lehrsäle. Im Untergeschoss befinden sich Werkstätten und Lager. Eine kaskadenartige Treppenanlage entlang der Nordseite erschliesst alle vier Geschosse, der lange Luftraum verbindet sie untereinander. Die von wenigen Fensteröffnungen durchbrochene Nordwand dient als riesige Ausstellungswand, die Verbindung zu den bestehenden Schulgebäuden erfolgt über eine gläserne Brücke im EG und OG; hier befindet sich auch der Zugang vom Lehrerparkplatz aus.

 Die Schulerweiterung ist als Skelettbau mit vorgesteller hochgedämmter Holzständerwand konzipiert. Das energetische Konzept basiert auf einer Bauteilaktivierung unter ausschließlicher Nutzung regenerativer Energien. Dem sommerlichen Wärmeschutz, in Alpenregionen ein massgeblicher Faktor, wird durch Nachtabkühlung und außenliegendem Sonnenschutz entsprochen. Nach Norden ist der lange Bau weitgehend geschlossen, die Belichtung der Erschließung erfolgt im wesentlichen über Dachfenster. Die Südfassade wird nur dort geöffnet, wo eine unmittelbare Belichtung wünschenswert ist, so in den Lehrsälen und im Erdgeschoss. Alle übrigen Bereiche bleiben hinter der vertikalen Lärcheschalung unterschiedlicher Breite und Tiefe verborgen, zur Lüftung können einzelne Fassadenbereiche jedoch horizontal nach außen geöffnet werden.

Die Holzfassade, die den Neubau wie eine Haut umfängt, trägt dem Standort mit seiner Holzbautradition ebenso Rechnung wie der Tatsache, dass sich die Schüler in ihrer Ausbildung zu Instrumentenmachern in vielfältiger Weise mit dem Material Holz beschäftigen. Der bewusst knappe Baukörper widersetzt sich zugleich durch Dimension und Machart jeder Anbiederung an eine vermeintlich lokale Bauweise und wird damit zum Ausdruck einer modernen Ausbildungsstätte.

Art

Realisierungswettbewerb, 2009

Ort

Markt Mittenwald

Auslober

Landkreis Garmisch-Partenkirchen

Bearbeitung

H. Baurmann | M. Dürr | M. Becker

Visualisierung

Stuchlik 3D

Modellbau

M. Becker

Publikationen

wettbewerbe aktuell 19.11.2009
competitionline 18.08.2009