Haus der Ev. Kirche, Offenburg

Den Wunsch der Ausloberin nach einem Haus der evangelischen Kirche in Form eines neuen integrierten Gemeindezentrums beantworten wir mit einem ergänzenden Neubau und der Sanierung des historischen Pfarrhauses. Dem denkmalgeschützten Pfarrhaus wird ein eigenständiger Neubau gegenüber gestellt, der sich in seiner Dimension, Form und Erscheinung zurückhaltend in den Hof einfügt.

Ein kleines Foyer mit einem Verbindungsgang schafft die funktionale Anbindung an das Pfarrhaus, durch den kompakten Neubau und die Anordnung an der westlichen Baugrenze wird trotz der beengten Grundstücksgröße ein attraktiver Hofraum geschaffen. Diese Aussenfläche unterstützt nicht nur den täglichen Betrieb des Gebäudes, sondern kann darüber hinaus auch für Gemeindefeste, Kirchcafé und vielfältige gemeindliche Aktivitäten genutzt werden.

Nutzungskonzept

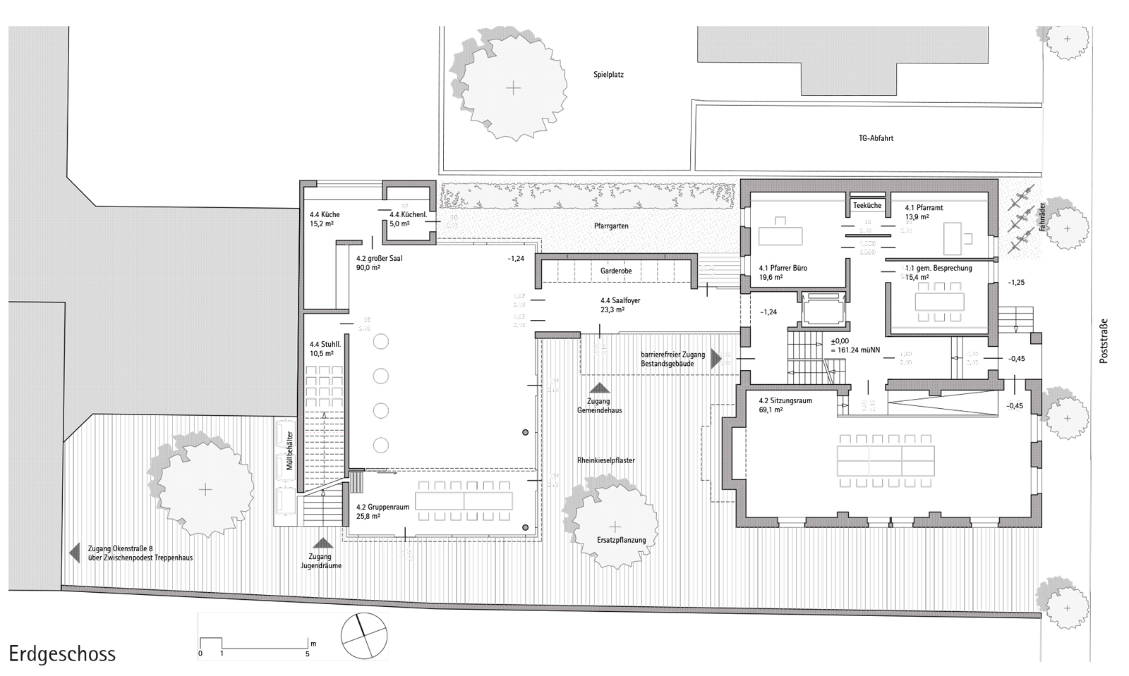
Die Bereiche der übergeordneten Verwaltung (Dekanat, Verwaltungs- und Serviceamt) sowie des Pfarrbüros der Stadtkirchengemeinde sind im bestehenden Pfarrhaus organisiert. Hierbei sind nahe dem Eingang im Erdgeschoss das Pfarrbüro sowie ein Besprechungsraum und der Sitzungsraum (Kleiner Saal) angeordnet. Die beiden Obergeschosse teilen sich das Verwaltungs- und Serviceamt und das Dekanat mit Schuldekanat und Erwachsenenbildung. Im sanierten Untergeschoss sind Archivflächen, Lagerräume und Toiletten für Besucher vorgesehen.

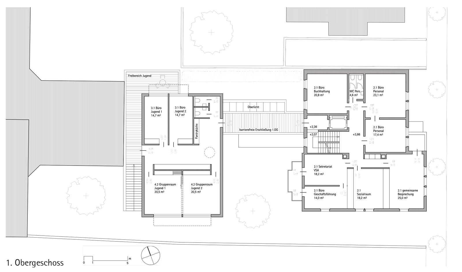
Die Räume des Gemeindehauses und der Jugend sind im Neubau konzipiert. Im Erdgeschoss befindet sich der große Saal mit dem zuschaltbaren Gruppenraum, die einen großzügigen Außenbezug zum Hof aufweisen. Unabhängig von der Saalnutzung im Erdgeschoss werden über eine separate Außentreppe die Räume der Jugend im Obergeschoss des Neubaus erschlossen.

Sanierung des historischen Pfarrhauses

Durch die Umnutzung des denkmalgeschützten Pfarrhauses für die Verwaltung und das Pfarrbüro kann die historische Raumstruktur beibehalten bleiben. Der nahezu unverändert erhaltene Konfirmanden-Saal wird durch die Nutzung als Sitzungsraum / Kleiner Saal in seiner ursprünglichen Ausgestaltung ebenfalls erhalten, was aus denkmalpflegerischer Sicht wichtig erscheint. Im Rahmen der energetischen Ertüchtigung des Gebäudes wird auf eine spezielle Innendämmung zurückgegriffen, um die Fassaden in ihrer Gliederung und Erscheinung nicht zu beeinträchtigen. Die Fassadenöffnungen werden durch eine denkmalgerechte Sanierung der Fenster mit den ursprünglichen Fenstereinteilungen wiederhergestellt. Mit dem eingeschossigen Anschluss des Verbindungstraktes in nur einer Fensterachse bleibt die rückseitige Hoffassade auch nach der Erweiterung weiterhin ablesbar. Ebenfalls wiederhergestellt wird die Dachform samt Dachdeckung durch die denkmalgerechte Rekonstruktion der straßenseitgen Spitzgauben, wie in der Planung von Vittali ursprünglich vorgesehen. Als zeitgemäße Ergänzung werden auf den Süd- und Westdachflächen unter Berücksichtigung bestehender Fensterachsen Kastengauben zugefügt.

Mit dem Einbau eines Aufzuges neben dem Treppenhaus im Bestand wird den Anforderungen einer komplett barrierefreien Erschließung des Pfarrhauses Rechnung getragen. Der barrierefreie Zugang des Hauses erfolgt von der Hofseite über das Treppenpodest aus. Im Kleinen Saal löst ein Podest mit Rampe in Form eines reversiblen Einbaumöbels die Erschliessung des tieferliegenden Fußbodenniveaus. Um das Untergeschoss als Archiv und Lager sowie für die Toiletten nutzen zu können, werden die Außenwände sowie der Kellerboden mittels Injektionsverfahren trockengelegt.

Erweiterungsbau

Zentrum des Gemeindehauses ist der große Saal im Erdgeschoss. Der zuschaltbare Gruppenraum und das Foyer schaffen einen großzügigen Raum mit Außenbezug zum Hof. Die räumliche Begrenzung des großen Saals und des Gruppenraumes erfolgt durch die massiven Wände in Küche und Lager sowie das Eingangfoyer. Raumhohe Verglasungen schaffen den Bezug zum Hof.

Durch die barrierefreie Erschließung der Toiletten im Untergeschoss des bestehenden Pfarrhauses kann auf eine kostspielige Unterkellerung des Gemeindehauses verzichtet und gleichzeitig die Kubatur des Neubaus zu Gunsten der Hoffläche kompakt gehalten werden.

Die separate Erschließung von außen, Zusammenschaltbarkeit der Gruppenräume für die Jugend, eigene Toiletten, eine kompakte Einbauküche und eine barrierefreie Erschließung (über das Dach des Foyers) schaffen bestmögliche räumliche Voraussetzungen für die Jugendarbeit. Die Fassaden werden durch raumhohe Verglasungen in Form von Elementfassaden mit außenliegendem Sonnenschutz gebildet; sie erhalten im Bereich der begrenzenden Massivbaukörper (Stuhllager, Küche, Küchenlager und Foyer) eine Oberfläche aus Jurakalkstein. Das Obergeschoss wird mit einer hinterlüfteten, vertikalen Leistenschalung aus vorbewittertem Lärchenholz zur einprägsamen „Holzbox“. Die stirnseitig bündig eingelassenen Knick-Fensterläden in der Holzfassade verstärken im geschlossenen Zustand die kraftvolle Form und geben im geöffneten Zustand den Hinweis Richtung Straße, dass der Jugendbereich „in Betrieb“ ist. Die extensive Dachbegrünung trägt zur Verbesserung des Mikroklimas wie zum erhöhten sommerlichen Wärmeschutz bei. Die Materialität des Erweiterungsgebäudes (Lärchenholz, Kalkstein, Glas), die reduzierte Formensprache und die kompakte Bauform unterstreichen die zurückhaltende Ausbildung dieser Hinterhofbebauung gegenüber dem denkmalgeschützten Pfarrhaus und schaffen dennoch eine identitätsstiftende Adresse für das Gemeindezentrum.

Außenanlagen

Als durchgängiger Belag für die Außenanlagen von der Poststraße bis zur Anbindung an die Okenstraße 8 ist ein versickerungsfähiges Natursteinpflaster aus Rheinkieseln vorgesehen. Diese in der Region häufig anzutreffende, historische Pflasterung zeichnet sich durch Robustheit und Wartungsfreiheit aus. Ersatzpflanzungen in den Hofbereichen zwischen dem Gemeindehaus und dem Pfarrhaus sowie vor dem Gebäude der Okenstraße schaffen einen Ausgleich für den entfernten Ahornbaum. Ein kleiner Pfarrgarten bildet den nördlichen Abschluss zwischen Foyer und Grundstücksgrenze. Die Anbindung an das Gebäude der Okenstraße erfolgt über einen neu zu schaffenden Zugang zum Zwischenpodest im jenseitigen Treppenhaus.

Energiekonzept

Ein wichtiger Baustein eines nachhaltigen energetischen Konzeptes ist die vollständige Sanierung des Bestandsgebäudes sowie eine räumlich kompatible Nutzung. Dadurch kann der Neubauteil klein gehalten werden. Denkmalgerechte, isolierverglaste Holzfenster, eine moderate Innendämmung im Bereich der historischen Fassaden, eine Außenwanddämmung an der fensterlosen Brandwand, neue Fußbodenaufbauten, eine Dachdämmung mit Ausflockung und eine Perimeterdämmung im Bereich des Kellers führen zu einer deutlich reduzierten Wärmeabgabe des Altbaus. Alt- und Neubau sollen gemeinsam über eine Sole-Wasser-Wärmepumpe mit Wärme versorgt werden. Eine Niedertemperatur-Fußbodenheizung sowie eine dezentrale Warmwassererzeugung sind ebenso effiziente wie preisgünstige Maßnahmen. Eine Photovoltaikanlage auf dem Flachdach des Neubaus liefert einen Teil des hierfür benötigten Stroms. Alles Regenwasser wird kontrolliert zur Versickerung gebracht bzw. zur Toilettenspülung in einen Grauwasserkreislauf eingespeist. Durch die Lage im Hinterhof, die umliegenden Bäume und das Gründach wird der sommerliche Wärmeschutz (außenliegende Jalousetten) deutlich entschärft.

Art

Einladungswettbewerb, 2011

Ort

Offenburg

Auslober

Ev. Kirchengemeinde Offenburg

Bearbeitung

H. Baurmann | M. Dürr | U. Bachmann

Visualisierung

Stuchlik 3D

Modellbau

H. Sommer

Publikationen

wettbewerbe aktuell 13.10.2011
competitionline 28.08.2011