Bürogebäude mit Parkhaus, Mühlacker

Neues Wahrzeichen für Mühlacker


Das zu beplanende bandartige Grundstück liegt mit der Zufahrt zum neu entstehenden Stadtteil „Ziegelhöhe" an einer sehr wichtigen Stelle für die Stadtentwicklung von Mühlacker. Es bildet eine Art Brückenkopf der Stadt auf der anderen Seite der Bahnlinie am Ende der Unterführung. Von dort erstreckt sich das Grundstück bis zum Quartiersplatz, dem Zentrum des neuen Wohngebiets. Es überwindet dabei einen enormen Höhenunterschied. Im Osten grenzt es direkt an den zentralen Grünraum, im Westen an einen großen Verbrauchermarkt. Wir sehen die Entwurfsaufgabe darin, für alle diese städtebaulichen Anschlüsse eine adäquate und angemessene räumliche Lösung zu entwickeln. Darüber hinaus muss die Bebauung in Material, Form und Ausdruck ein Zeichen für das neue Quartier setzen, das in den nächsten Jahren hier entsteht.

Das Zeichen sehen wir an dieser Stelle in einem Hochpunkt, der gegenüber dem Bahnhof am Eingang zum neuen Quartier weithin sichtbar als Orientierung und als neues Wahrzeichen von Mühlacker wahrgenommen wird. Wir sind der Überzeugung, dass nur ein vertikales Element stark genug ist, um sich in der neuen Stadtansicht gegen die massiven horizontalen Baumassen der Ärztekammer, der beiden Einkaufsmärkte Edeka und Aldi und des Baumarkts zu behaupten. Hinzu kommt die mehrgeschossige Bebauung im Hintergrund an der Hangkante, die die Silhouette mitbestimmt.

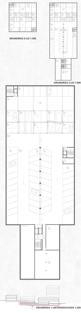
Auf dem langen Grundstück sollen drei Baukörper entstehen. Deren Setzung orientiert sich an den Baufluchten der gegenüberliegenden Baukörper des städtebaulichen Entwurfs. Die drei Gebäude lassen Durchgänge zum Grünraum offen und bilden Platzraumkanten durch Rücksprünge im Volumen an den drei wichtigen stadträumlichen Anschlüssen: am Ende der Unterführung, am Ende der Arkade der Verbrauchermärkte und gegenüber des Quartiersplatzes.

Die Bebauung passt sich der Topographie an und staffelt sich mit drei ähnlich großen Bauvolumen den Hang hinab. Das Hochhaus löst sich dabei von seinem Sockel, dem südlichsten am Kreisel gelegenen Baukörper und wird zum eigenständigen vertikalen Element.

Das Sockelgebäude übernimmt eine wichtige städtebauliche Mittlerrolle. Seine klammerförmige Grundrissfigur reagiert auf die zwei gegenüberliegenden Anschlüsse: sie empfängt zum einen die Fußgänger, die von Mühlacker durch die Unterführung kommen und zum anderen die Besucher, die aus dem neuen Stadtteil oder durch die Arkade vor den Verbrauchermärkten kommen.

Jeder der drei Baukörper hat eine bestimmte Nutzung. Am oberen Ende des Grundstücks befindet sich das SPORThaus, das sich mit seiner öffentlichen Nutzung zum Quartiersplatz öffnet. Unten am Kreisel steht das HOCHhaus von Craiss mit seinem Sockelgebäude, dazwischen das PARKhaus mit einer offenen Fahrradgarage. Diese orientiert sich zum Eingangsplatz des Hochhauses und liegt am Durchgang zum Park. Das SPORThaus mit Boulderhalle, Fitnessstudio, Tanzschule und Bistro soll das neue Zentrum mit Leben füllen.

Das HOCHhaus gliedert sich in 4 Nutzungseinheiten: im Sockel liegen das Foyer mit Museum und den Mietbüros, im oberen Teil die Räume von CRAISS, im Zwischengeschoss die Mensa mit Dachterrasse und die Besprechungsräume. In dieser „öffentlichen" Fuge treffen sich die Mitarbeiterinnen und Mitarbeiter der verschiedenen Büroeinheiten mit Blick über Mühlacker und das Schöneberger Tal. Oben auf dem Dach befindet sich die Technikzentrale.
Die Gliederung der Nutzungen wird zum architektonischen Ausdruck des Gebäudes. Über der Fuge löst sich das Hochhaus vom Sockel und wird zum zeichenhaften vertikalen Element in der neuen Stadtsilhouette. Als leichter Holz-Verbund-Bau erhebt sich das Hochhaus über dem schweren Sockel mit Ziegelfassade. Die Firma Craiss präsentiert sich so mit Ihrer neuen Zentrale einerseits verlässlich und bodenständig mit einer dauerhaften Ziegelfassade und andererseits offen und zukunftsorientiert, mit einer innovativen und ressourcenschonenden Holzhybridbauweise.

Das Verwaltungshochhaus soll in Holz-Verbund-Bauweise mit einer leichten Vorhangfassade konstruiert werden, das Sockelgebäude dagegen mit einer Fassade in monolithischer Ziegelbauweise. Bei allen Betonelementen wird Recycling-Beton verwendet. Stützen und Deckenelemente werden vorfabriziert. Dabei bestehen die wesentlichen tragenden Teile aus Holz, die entsprechend der baurechtlichen Vorschriften hochfeuerhemmend ausgebildet werden. Die Spannweiten der Decken liegen bei für Holz wirtschaftlichen 7 m. Aufgrund der Schwingungen, des Schallschutzes und zur thermischen Nutzung der Gebäudemasse sind vorfabrizierte Holz-Beton-Verbunddecken vorgesehen. Die Erschließungskerne werden zur Aussteifung aus Stahlbeton erstellt. Mit den zwei Aufzügen und den beiden Treppenhäusern werden die Verkehrsbewegungen im Gebäude auch in den Spitzenzeiten morgens und mittags sehr gut bewältigt.

Im Dachgeschoss befindet sich die Energiezentrale, um die Leitungswege kurz zu halten. Zur Wärmeerzeugung soll die vorhandene Fernwärme genutzt werden. Sie besitzt einen sehr guten Primärenergiefaktor und niedrige Investitionskosten. Aufgrund der geplanten Niedertemperatur-Systeme kann der Wärmeinhalt des Fernwärmewassers bei den niedrigen Rücklauftemperaturen sehr gut ausgenutzt werden. Die Kälteerzeugung zur Gebäudetemperierung erfolgt über einen Kaltwassererzeuger mit adiabater Kühlung. RLT-Anlagen mit hocheffizienter Wärmerückgewinnung und Heiz-Kühldecken sorgen in allen Jahreszeiten für ein angenehmes Raumklima. Im Sommer schützen außenliegende Sonnenschutzanlagen vor dem Wärmeeintrag. Zur Installationsführung von Elektroleitungen wird das Deckensystem oben mit einem Hohlraumboden ergänzt. Die Lüftungsleitungen sowie Heiz- und Kühlleitungen werden in der Konstruktionsebene geführt, die Heiz-und Kühldeckenelemente mit Akustikwirkung dazwischen gehängt. Die Dachflächen sollen als extensiv begrünte Gärten ausgebildet werden und mit Regenrückhaltung der Verbesserung des Mikroklimas dienen. Zur Sicherstellung von großen Teilen der Eigenstromversorgung werden Photovoltaikelemente auf dem Dach aufgestellt und an Teilen der Fassadenverkleidungen angebracht.

Wir setzen beim Parkhaus aus ökologischen und wirtschaftlichen Gründen auf einen Stahlskelettbau mit Decken in Stahlverbundbauweise. Durch das Vorfabrizieren kann schnell gebaut werden. Stahlkonstruktionen benötigen gerade bei großen Spannweiten wenig Material und sind dadurch ressourcenschonend. Der wichtigste Aspekt beim Einsatz von Stahl ist jedoch die Beständigkeit und das kreislaufgerechte Bauen. Die durch und durch elementierte Bauweise mit den geschraubten Verbindungen lassen einen kompletten sortengetrennten Rückbau zu. Das Material kann wiederverwendet werden und landet auf keiner Deponie, was bei Betrachtung der Gesamtbilanz eines „Gebäudelebens" eine ganz wichtige Rolle spielt. Den Geschossdecken sind Pflanzkästen für die Fassadenbegrünung vorgehängt. Die Fassade besteht aus einem Metallgewebe, das auch als Rankhilfe dient. Beides ist rot eingefärbt, um sich an die beiden Ziegelfassaden anzupassen.

Art

Realisierungswettbewerb, 2023

Ort

Mühlacker

Auslober

Craiss Generation Logistik GmbH & Co. KG

Bearbeitung

H. Baurmann | M. Dürr | D. Lahr | E. Schmitt | C. Süßmann

Visualisierung

loomn architekturkommunikation

Modellbau

W. Eichenlaub

Publikationen

competitionline 07.08.2023

wettbewerbe aktuell 08.02.2024