Christuskirche, Titisee-Neustadt

Die auf Fernwirkung berechnete, außerordentlich exponierte Lage der Christuskirche in Neustadt birgt das Potential einer engen Verzahnung mit der reizvollen Landschaft, die durch gezielte Ausblicke in die Umgebung übersteigert erfahrbar wird.

Durch das Zusammenlegen verschiedener gemeindlicher Nutzungen aus Kirche und Gemeindezentrum entsteht eine Vielzahl von komplexen, teils divergierenden Ansprüchen an das Bestandsgebäude der Kirche.

Mit dem Abriss des an die Kirche angebauten Gemeindehauses und die Veräußerung des westlichen Teils des Grundstücks wird das Ensemble aus Kirche, Pfarrhaus, Gemeindehaus und gemeindlicher Freifläche aufgelöst. In der baulichen und funktionalen Verknüpfung des neuen Gemeindezentrums mit der Kindertagesstätte besteht nunmehr die Chance, ein neues, stimmiges Ensemble zu schaffen und durch einen gemeinsamen Außen- und Zugangsbereich städtebaulich zu verankern.

Um dem Anspruch eines sakralen Raumcharakters für die Kirche gerecht zu werden und gleichzeitig die notwendigen Flächen für die Nutzungserweiterung bereit zu stellen, wird der bestehende Baukörper der Kirche horizontal geteilt. Die Funktionen des Gemeindezentrums mit Veranstaltungs- und Verwaltungsräumen befinden sich aufgrund ihrer höheren Frequentierung, größeren Öffentlichkeit und besseren Erreichbarkeit im Erdgeschoss.

Die Kirche selbst befindet sich im Obergeschoss; damit profitiert der Feierraum von der Weite und Höhe des Dachraumes. Um einen vom Gemeindezentrum unabhängigen Zugang zu ermöglichen, verfügt die Kirche über eine große Freitreppe, die den Kirchenbesucher in ihrer einladenden Gestik unter dem großen Vordach vom Kirchplatz abholt und mit ihren Sitzstufen samt großartigem Ausblick in die Weite dem Besucher Verweilmöglichkeiten anbietet.

Nach dem Aufstieg über die große Kirchtreppe kommt der Besucher in das vergleichsweise niedrige Foyer der Kirche mit gefasstem Blick nach Osten, um in einem nächsten Schritt in die volle Höhe des Kirchenraumes zu treten.

Die Räumlichkeiten der Kirche teilen sich in den eigentlichen Kirchenraum und einer angeschlossenen Empore. Dadurch ergibt sich für die Kirche ein kompakter Raum, der in seiner Größe auf die durchschnittlichen Besucherzahlen eines Sonntagsgottesdienstes von 40-100 Besuchern zugeschnitten ist; durch die Nutzung der Empore mit bis zu 80 weiteren Sitzplätzen erhält die Gemeinde ausreichend Platz auch für größere Gottesdienstveranstaltungen. Die Orgel beschließt zusammen mit dem großen Altarbild aus Holz den zusätzlich über Dach belichteten Altarraum.

Im Anschluss an einen Gottesdienst bietet der an den Kirchenraum angrenzende Gemeinderaum unter der Empore die Möglichkeit, im Rahmen eines Kirchencafés den Ausblick über den Alten Friedhof ins Tal zu genießen. Bei bedarf lassen sich das Kirchenfoyer und der gemeinderaum dem Kirchenraum flexibel zuschalten. Damit sind auch größere Veranstaltungen mit bis zu 250 Besuchern möglich.

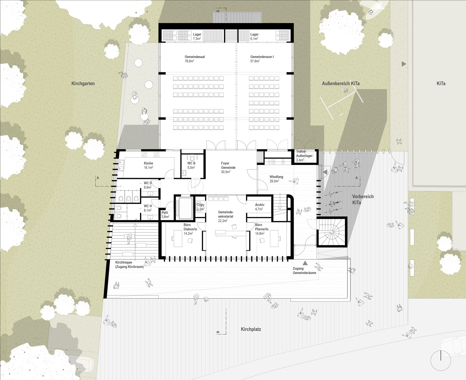
Das Gemeindezentrum wird unter dem gemeinsamen Vordach auf der Turmseite betreten. Südlcih des zentralen Foyers befinden sich die beiden Gemeindebüros und das Gemeindesekretariat mit Blickbezug zum Kirchplatz. Im Norden erstrecken sich die großzügig verglasten Gemeinderäume mit angegliederten Lagerbereichen. Diese lassen sich flexibel zusammenschalten und können für größere Veranstaltungen noch um die Fläche des Foyers erweitert werden. Im Bereich unter der Freitreppe sind die Sanitäranlagen und die Küche untergebracht, mit direkter Durchreiche zu einem der Gemeinderäume und optimaler Anbindung an den Aufzug, der die Barrierefreiheit des Gebäudes gewährleistet.

Die Verknüpfung von Kirche, Gemeinderäumen und Kindergarten gelingt über den neu gestalteten, gemeinsamen Vorbereich. Die äußere Erscheinung der umgebauten Kirche wird geprägt durch die knappe, archaische Gebäudeform und das Zusammenspiel der Materialien Putz, Holz und Weißbeton. Die zurückhaltende Gestaltung setzt sich auch im Innern des Ensembles fort; wenige, möglichst naturbelassene Materialien prägen die freundliche Erscheinung.

Art

Mehrfachbeauftragung, 2014

Ort

Titisee-Neustadt

Auslober

Ev. Kirchengemeinde Neustadt

Bearbeitung

H. Baurmann | M. Dürr | A. Chang | T. Minek | T. Quynh

Visualisierung

E. Wasilewska

Modellbau

K. Hekke

Platzierung

2. Rang

Publikationen

competitionline 17.02.2020