Seniorenheim am Warenbach, Villingen

Das Baufeld liegt am südlichen Stadtrand von Villingen am Ufer des Warenbachs. Es ist das letzte Grundstück eines Quartiers mit einer homogenen viergeschossigen Bebauung mit Punkthäusern im Norden und zwei Zeilen mit Kopfbauten im Westen.

Das Entwurfskonzept stützt sich auf drei Beobachtungen:

  1. Das Grundstück liegt an der Schnittstelle unterschiedlichster Körnungen, von zweigeschossigen Einzelgebäuden mit Walm- oder Satteldach über viergeschossige Punkthäuser und Zeilen bis hin zu großmaßstäblichen Solitären wie Finanzamt und Schule. In diesem Umfeld lässt sich eine weitere klare Großform gut platzieren.
  2. Das neue Gebäude hat im Erdgeschoss gemeinschaftliche Nutzung sowohl für die Stadt wie Tagespflege und Verwaltung als auch für das Quartier wie Cafeteria, Andachtsraum und Friseur. Es ist Adresse und Eingangsbau für das Quartier. Ein solches Gebäude braucht einen entsprechenden Vorbereich im Stadtraum und kann nicht direkt an der Straße stehen.
  3. Das Grundstück liegt direkt am Stadtrand bzw. am Stadteingang. Durch die Abdrehung des Baukörpers von der Straße entsteht ein Vorplatz. Diese nicht straßenbegleitende Stellung hebt die besondere Lage am Stadteingang hervor und öffnet den Weg in die Stadt.

Typologie

Der kompakte, langgestreckte Neubau mit seinen beiden Innnenhöfen trägt den unterschiedlichen Gegebenheiten Rechnung. Er nimmt die beiden Zeilen auf und komplettiert sie. Aus dem Paar wird ein Trio. Im Westen fasst er den bereits angedachten Gartenhof mit seiner Westfassade. Durch das Abrücken von der Straße Im Osten entsteht ein dreieckiger Platz, mit mehreren Funktionen. Er dient als Eingangsplatz für das Gebäude, er ist Terrasse für die Cafeteria, er leitet in die Bleichestraße ein und übernimmt somit auch eine übergeordnete Funktion für das Quartier und sogar für den Stadteingang.

Vernetzung im Stadtraum

Das Haus verfügt über ein internes Erschließungs- und Wegenetz, das feinmaschig mit den örtlichen Wegen verbunden ist; damit ist gewährleistet, dass sich der neue Baustein optimal in die bestehende Bebauung einfügt.

Bleicheplatz- Vorplatz  

Die "offizielle" Annäherung erfolgt über einen neuen Vorplatz. Von hier betritt der Besucher das neue Haus. Der Platz wird beherrscht durch seine dreieckige Form. An der breiten Seite, am Übergang zur nördlichen Bleichestraße steht ein Baum. Er bildet den Schwerpunkt des Platzes. Durch die Aufnahme des Pflasterbelages des Gehwegs verbreitert sich der Platz bis zur Straße und leitet in die "Wohnstraße" ein. Das Café im Haus, nach Osten zum Platz hin geöffnet, bietet die Möglichkeit, zu verweilen. Eine interne Erschließungsstraße im Haus bindet durch bis in den Hofgarten.

Hofgarten- Schlenderweg

Der Hofgarten vereint den Bestand mit dem neuen Haus. Hier enden beziehungsweise beginnen die Schlenderwege in den umgebenden Grünraum. Er wird durch die Uferzone des Warenbachs bestimmt. Die Aufenthaltsräume der Tagespflege liegen direkt am Hofgarten und können den Außenbereich gut nutzen.

Das Haus

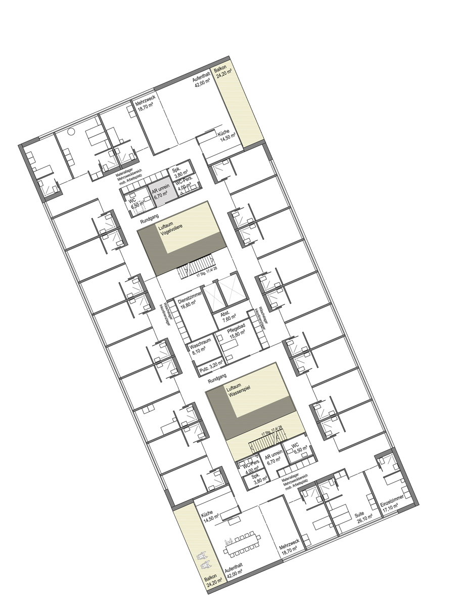
Das Haus besteht aus 6 unabhängigen Wohngruppe mit jeweils 12 Bewohnern. Sie liegen alle an einem zentralen Treppenhaus, wie in einem richtigen Wohnhaus, jeweils zwei pro Geschoss, über drei Etagen verteilt. In jedem Geschoss kommt man beim Betreten der Wohngruppe an der "Concierge", dem Pflegestützpunkt, vorbei. Die Eingänge der Zimmer haben einen kleinen Vorbereich. Hier wird nochmals subtil der halböffentliche vom privaten Bereich getrennt. Jede Gruppe hat ihren eigenen therapeutischen Rundgang. Zwei Innenhöfe bringen Licht und Blickbeziehunge in diese Wandelgänge. Einer der beide Innenhöfe könnte zu einer Voliere ausgebaut werden. Die Alltagsgeräusche des Pflegeheims werden durch Vogelgezwitscher bereichert, Erinnerungen an vergangene Tage hervorgerufen, Gespräche über die Schönheit der Tiere angestoßen. Im zweiten Innenhof, der sich im Erdgeschoss zum Warenbach öffnet, könnte ein Brunnen plätschern, der im Sommer eine angenehme Frische verbreitet. Der Gemeinschaftsraum liegt direkt neben der Küche und kann erweitert werden. Eine Loggia erweitert den Raum nach außen. In besonderen Fälle können auch zwei Wohngruppen zu einer zusammengefasst werden, was ein verzweigtes Rundwegenetz ergeben würde.

Erschließung, Anlieferung

Der Hauptzugang erfolgt von Osten von der Bleichestraße über den Vorplatz. Eine innnere Straße durch das Haus verbindet den Vorplatz mit dem Hofgarten. An dieser "Gasse" liegen die Zugänge zur Cafeteria und zum Andachtsraum, zur Verwaltung, zur Tagespflege, zum Friseur, zur Physiotherapie und natürlich der Zugang zum Pflegeheim. Über den nördlichen Teil der Bleichestraße wird angeliefert.

Außenraum

Der Außenraum besteht aus mehreren Bereichen: dem Vorplatz, dem Hofgarten und der Uferzone. Der Vorplatz ist Eingangsplatz, Aufenthaltsplatz und leitet in das Quartier. Der Hofgarten ist der geschützte Gartenbereich, der auch Ausgangspunkt für Spaziergänge in die Umgebung sein kann. Der Uferbereich ist gekennzeichnet durch die Retentionsfläche. Das Gebäude steht hier auf fünf Stützen. Es gibt Stege und Terrassen, die vom südliche Innenhof bis hin zum Bach führen.

Konstruktion

Der kompakte Baukörper hat eine geringe Hüllfläche und lässt einen geringeren Energieverbrauch erwarten. Durch die immer gleichen Zimmer wird man einen Schottenbau als Konstruktionsprinzip wählen. Die Nasszellen würde als Fertignasszellen gefertigt und eingebaut, was die Bauzeit deutlich verkürzen wird. Das Erdgeschoss steht in der Retentionsfläche auf Stützen.

 

Art

Realisierungswettbewerb, 2013

Ort

Villingen-Schwenningen

Auslober

Spitalfonds Villingen

Bearbeitung

M. Dürr | J. Hakenjos | T. Nitschke

Modellbau

werkplan

Publikationen

wettbewerbe aktuell 22.04.2013
wettbewerbe aktuell 07/2013
competitionline 26.04.2013