Fassadengestaltung Kongresshaus, Baden-Baden

Unser Vorschlag zur Neugestaltung der Gebäudehülle des Baden-Badener Kongresshauses sucht den Spagat zwischen respektvollem Umgang mit dem Bestandsgebäude aus den sechziger Jahren und einem zeitgemäßen Erscheinungsbild.

Dabei ging es uns nicht darum, dem heterogenen Ensemble einen weiteren Baustein hinzuzufügen, sondern um eine Straffung und Vereinheitlichung der Gebäudegeometrie. An der städtebaulich sensiblen Stelle des Übergangs zwischen Stadt und Park, zwischen steinernem und grünem Raum gelegen, steht das Kongresshaus nicht zuletzt für einen differenzierten Umgang mit dem öffentlichen Raum.

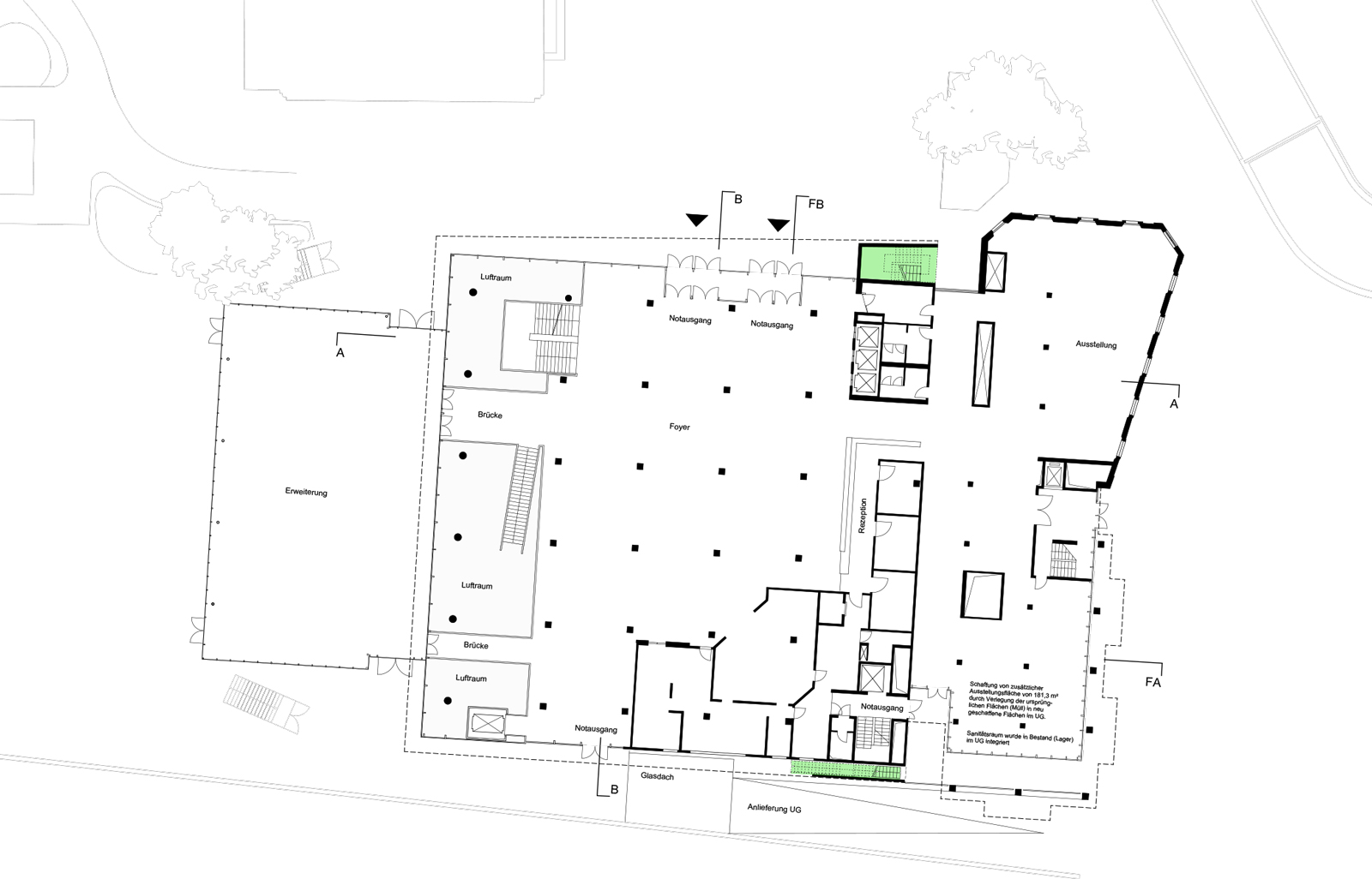
Eine vorgehängte Lamellenfassade aus Metall sorgt für ein maßstäbliches, einheitliches Erscheinungsbild. Das Gebäude wird zu einem wiedererkennbaren Baustein in der langen Perlenkette der Solitäre entlang des Oosbachs. Zugleich hebt es sich von seinen Nachbarn deutlich ab, ohne seine Funktion zu individualisieren. Die Fassade des ehem. Pelzhaus Richter wird denkmalgerecht saniert, die angrenzende Fassade von Bauteil C wird unter Beachtung der ursprünglichen Gestaltungsabsicht energetisch saniert und in ihrer zeittypischen Aussage gestärkt. Dabei wird das Erdgeschoss von Nebenfunktionen befreit und 180 qm zusätzliche Ausstellungsfläche geschaffen. Die Verlagerung der Müllräume ins Untergeschoss ermöglicht hier die Ausbildung einer angemessenen, hochwertigen Erdgeschossfassade.

Die neue Geometrie der Fassaden integriert die beiden zusätzlichen Fluchttreppenhäuser, das leichte Verschwenken der Nordfassade aus der Flucht inszeniert kaum merklich den Eingang am Augustaplatz. Die schräge Stellung der Lamellen lenkt den Blick des Nutzers in die Umgebung und inszeniert die Lichtenthaler Allee gleich einem Vexierbild. Ihre Stellung wird zudem als starrer Sonnenschutz genutzt. Die Fassade wird durch die Aufhängung an Kragträgern thermisch  getrennt ausgeführt; die thermische Hülle wird auf die Vorderkante der umlaufenden Balkone verlagert, was zu einem deutlichen Flächengewinn in den Geschossen führt. Die Fassade des Pelzhaus Richter wird durch eine kapillaraktive Innendämmung sowie durch Kastenfenster ertüchtigt.

Energetische und brandschutztechnische Maßnahmen stehen im Vordergrund der Fassadensanierung des Kongresshauses. Zugleich eröffnet die Neugestaltung der Fassaden die Möglichkeit, den massigen Baukörper besser in die sensible Struktur der Uferbebauung zu integrieren und dem Multifunktionsbau ein zeitgemäßes, zugleich jedoch zeitloses Äußeres zu verleihen.

Art

Mehrfachbeauftragung, 2012

Ort

Baden-Baden

Auslober

Stadt Baden-Baden

Bearbeitung

H. Baurmann | M. Dürr | U. Bachmann

Visualisierung

Stuchlik 3D

Publikationen

competitionline 14.05.2012