Finanzamt, Schwarzenberg

Der Entwurf zum Neubau des Finanzamtes in Schwarzenberg leitet sich aus der städtebaulichen Situation ab: das Baugrundstück ist inselartig in einem heterogenen Umfeld zu Füßen des Schloßbergs gelegen, begrenzt von der Karlsbader Straße im Norden und Westen sowie dem Fluß im Süden.

Der einzige zusammenhängende Gebäudezug aus Altbauten entlang der Karlsbader Straße bekommt daher Richtungsfunktion, ausformuliert durch eine neue Wegebeziehung bis auf das gegenüberliegende Ufer der Schwarzwasser.

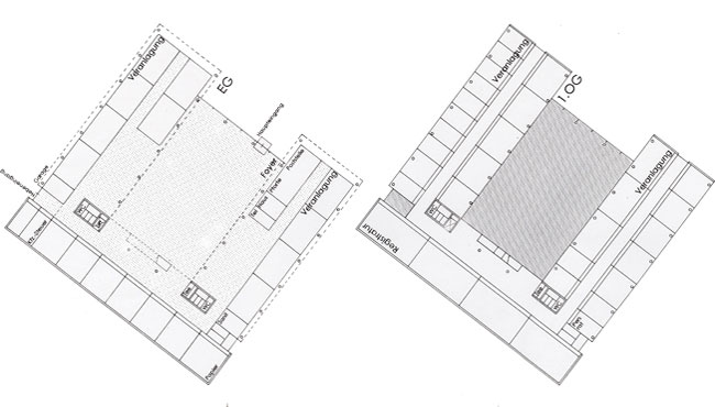
Der Bau selbst gibt sich seinem Inhalt gemäß eher introvertiert und unspektakulär. Er wendet sich von der Hauptstraße ab und öffnet sein Inneres über eine große Glashalle der großen, östlich gelegenen parkartigen Platzfläche. Diese zentrale, atriumähnliche Halle gewährleistet eine allseitige Belichtung der Büroflächen und eine stets unkomplizierte Orientierung. Die einzelnen Etagen sind nach streng ökonomischen Gesichtspunkten organisiert und als selbständige, hochflexible Einheiten zu nutzen. Auf dem östlich vorgelagerten Platz sind die erforderlichen Stellplätze ausgewiesen; die Zufahrt erfolgt von der Badwiese her.

Art

Realisierungswettbewerb, 1996

Ort

Schwarzenberg (Sachsen)

Auslober

Staatshochbauamt Zwickau

Bearbeitung

H. Baurmann

Publikationen

wettbewerbe aktuell 11/1996