Alten- und Pflegeheim Marienhaus, Offenburg

Das Baugrundstück liegt inmitten der Innenstadt von Offenburg, dicht umgeben von historischen Gebäuden. Die Heiligkreuzkirche mit ihrem prägnanten Barockturm ist sichtbar, der Marktplatz fußläufig erreichbar. In Reaktion auf diese besondere Situation wird die Einbindung in den Stadtraum zum übergeordneten Ziel des Entwurfs.

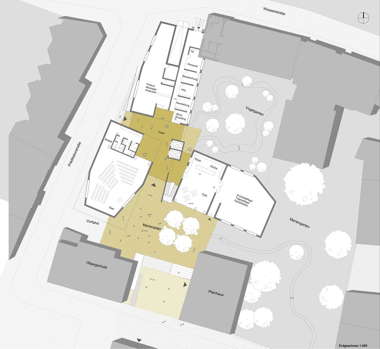
Marienplatz - städtischer Vorplatz: Die „offizielle“ Annäherung erfolgt über einen neuen städtischen Vorplatz. Von hier betritt der Besucher das Marienhaus. Der Platz ist umgeben von Gebäuden der Kirche, dem Pfarrhaus, dem Marienhaus mit dem  Gemeindesaal, der Kirchenverwaltung und der Kirche selbst. Der Blick auf den Kirchturm ist der räumliche Höhepunkt. Der Marienplatz stellt die Anbindung des Marienhauses an die Kirche her, er wird mit den angelagerten Eingängen zum zentralen Treffpunkt. Das Cafe im Marienhaus, nach Süden zum Platz hin geöffnet, bietet die Möglichkeit zu verweilen. Die gegenwärtig vorhandenen, zum Pfarrhaus gehörigen Garagen werden ersetzt durch drei Stellplätze in der Tiefgarage des Marienhauses.

Prädikaturstraße: Kulisse  Besucher, die ihr Auto im Parkhaus Wassertor abgestellt haben, gelangen über die Prädikaturstraße zum zweiten Eingang des Marienhauses. Die gestaffelte Gebäudestellung leitet zum Eingang, begleitet von einer Rampe und Stufen. Durch diese Staffelung verengt sich der ansteigende Straßenraum kulissenartig, der Blick auf den Park vor der Heiligkreuzkirche wird inszeniert. Erlebnisse im Straßenraum werden damit zu einer dritten Variante in der Annäherung.

Dominanz Kirche: Der Standort erhält seine Identität durch die Heiligkreuzkirche. Die Dominanz der Kirche in Position und Größe soll verstärkt werden, ihre Größe einzigartig bleiben. Der Block zwischen Pfarr-, Prädikatur-, Wasserstraße und Wolkengasse ist dreiseitig umbaut, die zur Kirche gewandte bisher geschlossene vierte Seite wird geöffnet: Garagen werden ersetzt durch den Platz, der Kirche und Marienhaus in Beziehung zueinander setzt und den Blick auf den Kirchturm ermöglicht. Die Einbindung der Kirche wird somit räumlich hergestellt.

Drei Häuser: Der Maßstab des Pflegeheimes orientiert sich sowohl an der Umgebung als auch an menschlichen Bedürfnissen. Der Maßstab, aus dem sich die Blockrandbebauung der Altstadt zusammensetzt, ist das einzelne Haus – aus unterschiedlichen Epochen, Materialen, mit unterschiedlichen Nutzungen und Bewohnern belegt. Auf diesen Maßstab bezieht sich die Aufgabe des Pflegeheimes. Ein direkter Dimensionsbezug ergibt sich zu den angrenzenden Gebäuden, dem alten Marienhaus und dem Gebäude der Kirche an der Pfarrstraße. Die Größe der Kirche bleibt einzigartig.

Die Herkunft der Heimbewohner aus Privathaushalten - aus Häusern - legt auch aus einer anderen Sicht den Maßstab eines Hauses fest: die überschaubare und bekannte Dimension einer Wohnung (Wohngruppe) auf einer Etage bestimmt damit die Ausmaße des einzelnen Hauses. Dieses Haus wird zur neuen Heimat, das Pflegeheim gliedert sich in drei einzelne Häuser. 

Räume für Alle: Das Marienhaus präsentiert sich lebendig im Stadtraum: der Gemeindesaal und das Cafe, Begegnungsorte zwischen Gemeinde und Heimbewohnern bilden ein kommunikatives Zentrum im Erdgeschoss. Das Gewerbe/ die Läden, orientieren sich zur Prädikaturstraße und können das Erdgeschoss durch Friseurladen oder Arztpraxis beleben.

Außen: Die Vielfalt der Freibereiche ergänzt das Angebot im Inneren der heimeigenen „überschaubaren Stadt“, kann aber auch Anziehungspunkt für Stadtbewohner werden und damit zur Integration beitragen. Der Demenzgarten liegt abgeschlossen im Innenhof und bietet eine ruhige Atmosphäre. Der Marienplatz bietet die Möglichkeit, Angehörige im Freien zu erwarten oder nach der Veranstaltung im Gemeindesaal Erlebtes gemeinsam zu diskutieren.

Art

Mehrfachbeauftragung, 2007

Ort

Offenburg

Auslober

Vinzentiushaus-GmbH, Offenburg

Bearbeitung

H. Baurmann | M. Dürr | S. Bauer

Fachberater

S. Dürr

Visualisierung

Stuchlik 3D

Modellbau

S. Bauer

Platzierung

1. Preis, Realisierung