Neues Rathaus, Malsch

Die Wahl des Grundstücks: Die Realisierung des neuen Rathauses ist nur dann problemlos, wenn es keine Überschneidungen der Grundfläche mit dem bestehenden Rathaus gibt. Darüberhinaus sprechen aber auch andere Gesetzmäßigkeiten für den durch den Auslober vorgeschlagenen Bereich vor der Kirche: die topographische Situation ist gerade dort eine besondere.

Hier kommt der auslaufende Anstieg in Nord-Süd-Richtung zusammen mit dem Beginn des Gefälles von Ost nach West - eine Grundstückssituation, die von alters her mit Gebäuden besonderer Bedeutung belegt wurde. Zudem ermöglicht das Gegenüber zur Kirchenfassade und der starke räumliche Bezug über den Kirchberg zur Hauptstraße des Dorfes die Schaffung eines städtebaulichen Körpers.

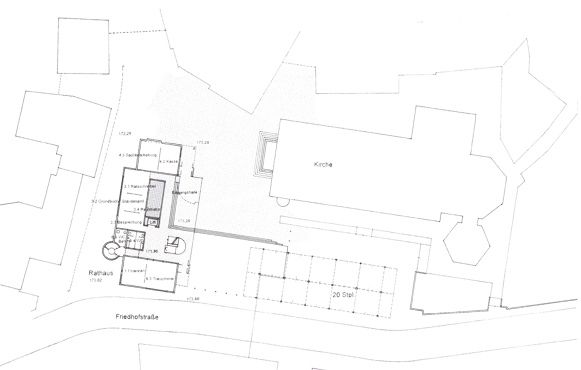
Räumliches Konzept: Das Dorf wird weitergebaut - nicht restauriert, nicht neu erfunden, lediglich weitergebaut. Vorhandene Räume werden verlängert, geklärt, definiert. Ein dörflicher Platzraum rings um das neue Rathaus überschneidet sich mit der Raumfolge rund um die Kirche. In diesem Schnittbereich bildet sich der neue Nukleus des Ortes, hier liegen sich die Hauptzugänge zu Kirche und Rathaus nicht achsial, sondern der dörflichen Struktur entsprechend spannungsvoll versetzt gegenüber. In das Gebäude hineinlaufende Stufen verbinden Innen und Außen, der Platz wird Teil des Hauses. Das Rathaus betont die topographisch herausgehobene Situation mit einem langgestreckten, schmalen Baukörper. Der Nordgiebel ragt in die Gabelung von Kirchberg und Kirchplatz. Die räumliche Struktur des Kernbereichs wird nach dem Abriss des alten Rathauses gegen die angrenzenden, offen bebauten Gebiete durch eine baulich wirksame Anlage von überdachten Parkplätzen geschlossen.

Organisation und Nutzung: An einer großzügigen, der Kirche zugewandten Glashalle, die im Bereich der Treppe bis unters Dach reicht, spannen sich alle Nutzungsbereiche auf. Unter dem frei geformten Besprechungszimmer des Bürgermeisters, im dem Dorfkern zugewandten Nordgiebel, gelangt der Besucher in die Halle. An den Stufen endet das Pflaster des Platzes - jetzt erst ist man richtig im Haus. Im Erdgeschoß findet sich neben dem Trauzimmer und der Finanzverwaltung das Grundbuchamt. Ein eingestelltes, in Farbe und Material abgesetztes Aktenhaus reicht vom Archiv im Keller bis ins Obergeschoß; hier ist auch ein Aufzug untergebracht, um einen reibungslosen Transport zu ermöglichen und die behindertengerechte Anbindung aller Bereiche sicherzustellen. Im Untergeschoß sind in der nordwestlichen Ecke des Gebäudes aufgrund der fallenden Topographie natürlich belichtbare Büroflächen vorgesehen, die einem eventuellen künftigen Bedarf dienen. Im Obergeschoß trifft der Besucher auf das Hauptamt und den Bereich des Bürgermeisters. Unter dem freigespannten Dachtragwerk aus Stahl befinden sich die Sitzungsbereiche mit großem und kleinem Saal, dem Personalraum und einem offenen, für verschiedene Veranstaltungen nutzbaren Foyer. Das Dach über dem östlichen Seitenflügel ist begehbar und dient als Pausenbereich und Ratsbalkon. Im Westteil des Gebäudes ist ein WC-Kern mit Nebenräumen durch alle Geschosse gesteckt. Hier ist auch die Fluchttreppe als plastisches Element angegliedert.

Art

Realisierungswettbewerb, 1997

Ort

Malsch (Baden)

Auslober

Gemeinde Malsch

Bearbeitung

H. Baurmann | T. Haug | C. Wirtz

Publikationen

wettbewerbe aktuell 6/1998