Bonifatiushaus, Karlsruhe

Die Schillerstraße im Karlsruher Westen ist eine der Straßen, die auch heute noch nahezu gänzlich durch den ernsten Duktus der klassischen, gründerzeitlichen Blockrandbebauung der Stadterweiterungen aus dem Ende des 19. Jahrhunderts gekennzeichnet sind. Einzig die mächtige Bonifatiuskirche südlich des Landgrabens gibt dem südlichen Teil der Straße ein etwas aufgelockertes, freundlicheres Gepräge, zu dem auch das nur hier Platz findende Straßengrün beiträgt. Durch die relative Enge der Straße und die Tatsache, dass sich der Autoverkehr die Fahrbahn mit der Straßenbahn teilen muss, erschien uns die Frage nach der Wahl des Zugangs zum neuen Gemeindehaus als besonders bedeutsam.

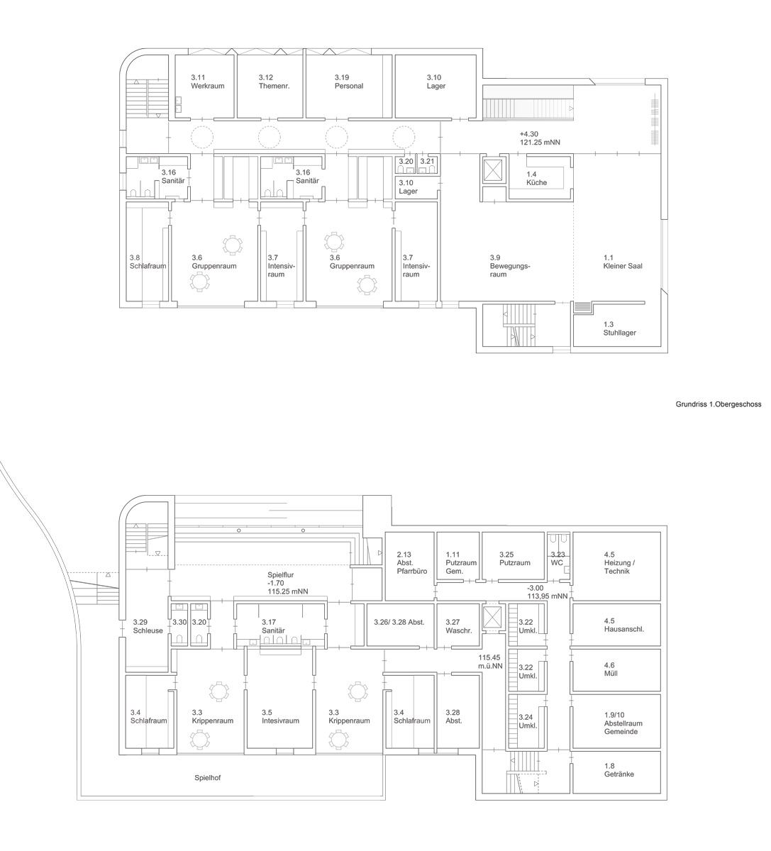
Die beiden Grundfunktionen des Gebäudes – Gemeindehaus mit Verwaltung und Saal auf der einen, Kindergarten und Tagesstätte mit zugehörigem Freiraum auf der anderen Seite - sollten außerdem nicht dazu führen, einen Gebäudetypus mit zwei Gesichtern zu entwerfen. In dem großstädtisch-bürgerlichen Umfeld bedarf es, will man aus der städtebaulichen Tradition heraus agieren, vielmehr eines kräftigen Stadtbausteins, dessen Funktionen nicht auf den ersten Blick von außen abzulesen sind. Auch eine wie auch immer geartete Vermittlung zwischen Kirche als Sonderbau und angrenzender Wohnbebauung scheidet unter Berücksichtigung der historischen Vorbilder von vorneherein aus.

Der Entwurf muss also Antworten geben auf folgende Fragen: wie ist eine funktionale Verknüpfung von Kindergarten und Gemeindehaus bei äußerst begrenzter Grundfläche möglich, ohne dass es zu gravierenden Störungen im laufenden Betrieb kommt? Wie ist ein gefahrloses Ankommen und Abholen der Kinder in einer Blockrandstruktur möglich, ohne sicherheitstechnische Belange zu gefährden? Und wie kann trotz des räumlich überwiegenden Kinderbereichs der Aspekt der Adressbildung für die Gemeinde in den Vordergrund geschoben werden.

Alle aufgeworfenen Fragen tragen die Antwort bereits in sich: der Eingang zum Gebäude muss in die Tiefe des Grundstücks entwickelt werden, um eine entsprechende Vorzone zu generieren; der Kindergartenbereich muss im straßenabgewandten Teil des Gebäudes über mehrere Geschosse gezogen werden, und der Sekretariats- und Gemeindebereich mit dem großen Saal muss zur Stadt, also zur Straße hin, orientiert und entsprechend gut auffindbar sein. In den Abendstunden, wenn der Kindergarten seinen Betrieb eingestellt hat, leuchten die gemeindlichen Aktivitäten in den Straßenraum hinein, während morgens das Licht aus dem gemeinsamen Foyer den Zugang zum Kindergarten erhellt.

Art

Realisierungswettbewerb, 2020

Ort

Karlsruhe-Weststadt

Auslober

Kath. Kirchengemeinde Allerheiligen, Karlsruhe

Bearbeitung

H. Baurmann | T. Quynh | J. Hakenjos | D. Letter | L. Bühler

Modellbau

werkplan

Platzierung

3. Preis

Publikationen

wettbewerbe aktuell 19.10.2020

competitionline 15.10.2020