Kath. Gemeindehaus, Weissach

Der Neubau des Pfarrhauses in Weissach bietet die Chance, das Ensemble aus Kirche, Gemeindezentrum und Pfarrhaus neu zu ordnen. Wichtig erscheint uns, den Kirchenbau deutlich frei zu stellen und über ein System von Platzräumen mit den umliegenden Bauten sowie dem Ort neu zu vernetzen.

Dafür rückt der Neubau des Pfarrhauses so weit von der Kirche ab, dass ein großzügiger Zugangsbereich zu allen drei Baukörpern entsteht.

Leitgedanke der Platzräume und Erschließungsflächen ist die weitestgehend barrierefreie Durchwegung des hängigen Geländes vom Tannenweg bis zur Bahnhofs- bzw. Grabenstraße. Dazu wird talseitig vor der Längsseite der Kirch eine große Platzfläche ausgebildet, die durch eine Baumreihe zur Grabenstraße hin begrenzt wird.

Im Übergangsbereich zur bereits vorhandenen Rampe von der Alten Strickwarenfabrik auf das Kirchplateau wird auf einer zweiten, etwas tiefergelegenen Ebene eine Art Aussichtsterrasse ausgebildet, die einem Scharnier gleich die unterschiedlichen Ebenen verknüpft und gegen den Bahnhof hin abschließt. Von der Grabenstraße führt eine Freitreppenanlage mit Sitzstufen entlang des neuen Pfarrhaues auf dem Kirchplatz, um ein weiteres Scharnier an der Stirnseite der Kirch Richtung Gemeindezentrum und Kindergarten zu verschwenken.

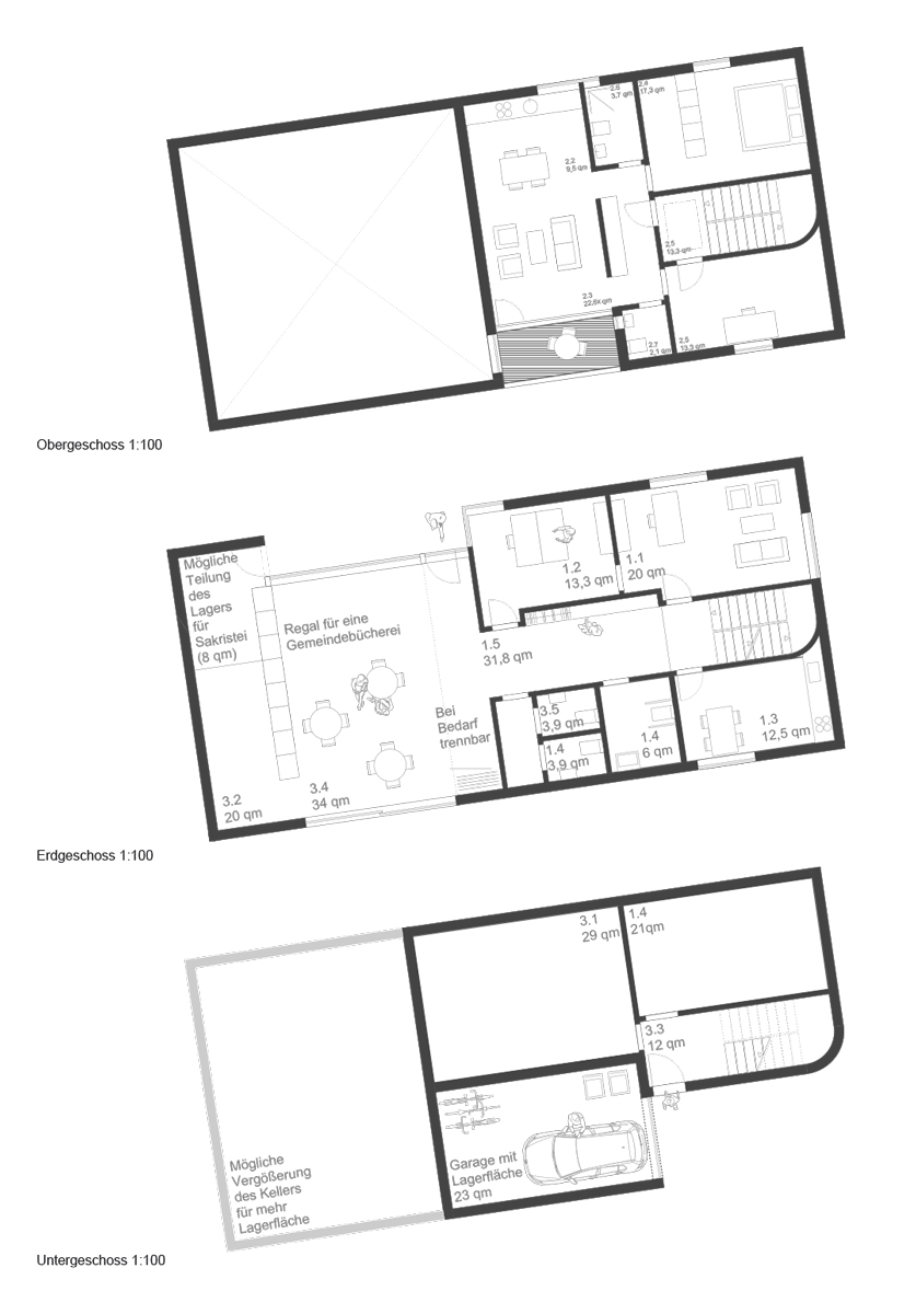
Das Pfarrhaus selbst verfügt über drei Ebenen und ist hart an die Straßenkante gesetzt. Neben einer Garage befindet sich hier der Eingang zur Pfarrwohnung, die unter dem großen, alles überspannenden Satteldach Platz findet. Durch die Option einer Vollunterkellerung können hier unten zudem weitere Abstellflächen geschaffen werden.

Das Gemeindebüro mit Mehrzweckraum wird dagegen vom Kirchplatz aus, auf der zweiten Ebene, erschlossen. Es verfügt neben den Diensträumen des Pfarrers über eine Teeküche und Toiletten, die barrierefrei von der Kirche aus erreichbar sind. Die Lage am Kirchplatz, auf Augenhöhe mit der Kirche, dient der deutlichen Adressbildung und hat zudem funktionale Vorteile.

Die Pfarrwohnung eine Etage höher orientiert sich über eine Dachloggia hin zum neuen Pfarrgarten, der vom Mehrzweckraum aus begehbar ist. Dieser Veranstaltungsraum verfügt über eine größere Höhe als die übrigen Bereiche des Hauses und lässt sich zum Kirchplatz hin öffnen, so dass bei Gemeindefesten eine Einbeziehung der Platzfläche möglich ist. Außerdem lässt sich der Saal zum Verwaltungstrakt hin mit einer mobilen Glaswand abschließen. Da auch das Treppenhaus im vorderen Bereich des Hauses abschließbar ist, kann die mittlere Ebene ganz oder in Teilen separat genutzt werden.

Der Baukörper des neuen Pfarrhauses ist als einfacher, in seiner präzisen Ausformulierung fast archaisch anmutender Putzbau geplant. Das eingelegte Satteldach nimmt die zurückhaltend-elegante, erdtonige Farbigkeit der Außenwände auf, gegen die die cremefarbenen Putzfaschen der Fensterumrahmungen deutlich abstechen. Im Inneren schaffen weiß verputzte Wände und Decken sowie ein warmtoniger Dielenboden eine freundliche, lichte und zeitlose Atmosphäre.

Art

Mehrfachbeauftragung, 2013

Ort

Weissach

Auslober

Kath. Kirchengemeinde St. Clemens

Bearbeitung

H. Baurmann | M. Dürr | T. Nitschke

Visualisierung

Stuchlik 3D

Modellbau

werkplan

Platzierung

1. Preis, Realisierung

Publikationen

competitionline 09.08.2013