Reihenhäuser Franzosenkaserne, Karlsruhe

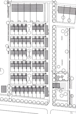
Das städtebauliche Konzept der Volkswohnung wird übernommen und ausgehend vom entwickelten Haustyp modifiziert. Dabei ergeben sich sechs Zeilen mit jeweils sieben bis acht nord-süd-orientierten Reihenhäusern.

Senkrecht zu den Zeilen entwickelt sich ein durchgängiger Bereich mit Wegen und Plätzen, die die Zeilen gliedern und zu einem Ganzen werden lassen. Jeder Wohnweg grenzt an einen dieser Plätze, die einen kleinen Quartierstreffpunkt bilden und Spielmöglichkeiten für Kleinkinder bieten. Für Kinder bis sechs Jahren ergibt sich dadurch der erforderliche Bewegungsraum, ohne eine befahrene Straße überqueren zu müssen.

An der Straße liegt jeweils einer Wohnzeile zugeordnet ein Carport. Kleine Aufweitungen zwischen den Carports markieren die Zugänge zu den Wohnwegen. Das Gesamtquartier erhält durch die östlich angrenzende Spielfläche einen übergeordneten, öffentlichen Raum, der Kontaktmöglichkeiten über das unmittelbare Quartier hinaus bietet. Die dort platzierte Heizzentrale markiert den Siedlungseingang. Dort bietet ein kleiner Gemeinschaftsraum den geeigneten Rahmen für selbstorganisierte Kinderbetreuung, Feste, Kurse etc.

Der Reihenhaustyp entwickelt sich auf einer 150 qm großen Parzelle dreigeschossig auf einer Grundfläche von 7,5 x 7,5 Metern. Ein 3 Meter tiefer Vorbereich mit Fahrradschuppen und Vorgarten bildet den Eingangs- bereich. Das Haus gliedert sich in eine Nebenraum- und Erschließungszone im Norden und die nach Süden gerichteten Wohn- und Schlafbereiche. Die nördlich angelegten Abstellräume und die kleine Loggia im Obergeschoss, die über ein Schiebeelement aus Glas verschließbar ist, puffern den beheizten Bereich zusätzlich ab. Auf der Gartenseite individualisieren Außenschränke für Gartengeräte und -möbel die unter einer Pergola angeordneten Terrassen.

Die Keller und Haustrennwände werden aus Filigran-Betonhalbfertigteilen hergestellt, die übrigen Bauteile werden im Holztafelbau erstellt. Dabei finden vorgefertigte Holzkastenelemente Verwendung. Die 20 cm starken Elemente werden vollgedämmt; außenseitig wird zusätzlich eine 8 cm starke, durchgehende mineralische Dämmung aufgebracht. Die Fassade wird mit einer hinterlüfteten, horizontalen Nut- und Feder-Stülpschalung aus Lärchenholz versehen. Die Nebengebäude sind mit einer senkrechten, in verschiedenen Farben lasierten Holzschalung mit offenen Fugen ausgeführt. Die Flachdächer des Hauptbaukörpers werden extensiv begrünt.

Art

Realisierungswettbewerb, 1998

Ort

Karlsruhe

Auslober

Volkswohnung Karlsruhe

Bearbeitung

H. Baurmann | T. Haug

Fachberater

A. Wagner Bauphysik I T. Göbel-Groß Landschaftsarchitekt

Modellbau

B. Barkenmeyer

Platzierung

3. Preis

Publikationen

wettbewerbe aktuell 6/1998