Wohnhaus Florian, Karlsruhe

Das Mehrfamilienhaus befindet sich in einer vorstädtischen, gleichwohl dörflich anmutenden Umgebung und markiert das Ende eines in diesem Kontext etwas kurios anmutenden, weil „städtischen" Blockrands. Der erste Entwurf sah ein reines Flachdachgebäude mit zurückgestaffelten Dachgeschossen vor. Nach langwierigen und schwierigen Verhandlungen mit den zuständigen Behörden der Stadt einigte man sich schließlich auf einen Kompromiß: vier Vollgeschosse für drei Wohneinheiten, straßenseitig dem angrenzenden Mansarddach angepasst. Im Gegenzug gewährte die Stadt eine höhere Grundstücksausnutzung und Befreiungen bei den Abstandsregelungen.

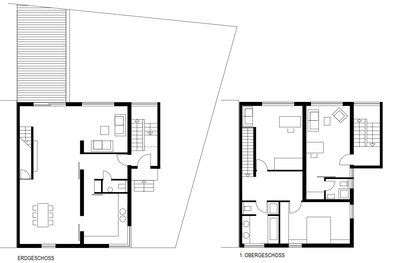
Das Gebäude ist sehr einfach aufgebaut: zwei ähnlich konzipierte, übereinander-gestapelte Maisonetten werden um ein kleines Appartement für den Sohn der Bauherrin ergänzt, das zu einem späteren Zeitpunkt der unteren Wohnung zugeschaltet werden kann. Die giebelseitig angesetzte Erschließung gewährleistet eine maximale Freiheit in der Grundrißgestaltung des Kubus. Die obere Maisonette ist ganz auf die Bedürfnisse der Bauherrin zugeschnitten und dementsprechend offen gestaltet. Sie verfügt über einen Luftraum, an dessen straßenseitiger Aus-formulierung in Form eines Gegengiebels die wahre Geschossigkeit ablesbar bleibt. Das Giebelthema der Nachbarbauten aus der Jahrhundertwende wird in eine zeitgenössische Formensprache übersetzt. Zugleich wird durch die Grundriß-geometrie der Galerieebene im Innern jeder Eindruck eines Dachgeschosses vermieden.

Die Fassaden des schlichten, kubischen Baukörpers nehmen einerseits Bezug auf ihre Umgebung, entziehen sich jedoch durch ihre fremdartigen Proportionen einer bloßen Eingliederung in die vorhandene Bebauung. Trotz exakter Übernahme von Traufkante und Dachneigung geben die geschosshohen Fensterelemente mit ihren schlanken Formaten, der übergroße Glaskasten des Gegengiebels und die fehlende Sockelkante dem Bau die Wirkung einer abstrakten Skulptur. Dem entspricht die minimierte, ganz auf die Wirkung von Raum und Licht ausgelegte Gestaltung des Inneren.

Während die Südseite zu den angrenzenden Gartengrundstücken fast vollflächig verglast ist, lassen Straßen- und Giebelfassade nur an exakt definierten Punkten Ausblicke und Lichteinfall zu. Die Übergänge der einzelnen Räume untereinander sind fließend, allenfalls durch Schiebewände trennbar. Die interne Erschließung erfolgt über eine einläufige, hinter einer Wandscheibe verborgenen Treppe. Einbauschränke gliedern die verschiedenen Bereiche in öffentlichere und privatere Zonen. Auch die technischen Einrichtungen wurden dem formal reduzierten Innen-raumkonzept unterworfen.

Ort

Karlsruhe-Bulach

Projektleitung

H. Baurmann

Bearbeitung

A. Falk

Bauleitung

H. Baurmann

Planung

2005 - 2006

Realisierung

2006 - 2008

Fotos

S. Wiedmann

Leistungsphasen

1 - 9