Areal Ziegelhöhe, Mühlacker

Baufeld A0
Das Baufeld A 0 bildet den südwestlichen Rand des neuen Wohngebiets und liegt wie Baufeld D 0 gegenüber der Innenstadt von Mühlacker auf der anderen Seite der Bahnlinie auf einer Anhöhe. Wir haben das östlich angrenzende Baufeld mit in die Planung einbezogen, weil wir der Meinung sind, dass auch an dieser Stelle eine einheitliche Silhouette in Richtung Mühlacker wichtig ist. Insgesamt sehen wir hier dieselben beiden Typen wie auf Baufeld D 0, da sehr ähnliche Anforderungen an die Bebauung gestellt werden. Allerdings setzen wir hier den scharf geschnittenen monolithischen Turm mit eingeschnittenen Loggien an zwei Stellen ein, an der Grenze zur grünen Mitte und als Abschluss zum westlichen Hang. Dazwischen beziehungsweise davor liegen die beiden horizontal gegliederten Häuser mit den weit auskragenden Balkonen. Balkone und Deckenstirn sind aus Beton, die Fassaden dazwischen aus Holz. Die beiden Monolithen würden wir mit hellem Klinker verkleiden, die ausgeschnittenen Loggien mit Holz einfassen.

Die vier Häuser werden paarweise jeweils über einen kleinen Hofplatz erschlossen. Der Eingangshof ist ein halböffentlicher Raum, der den Bewohnern zugutekommt. Angelegt als Platz mit Baumgruppe zu dem sich der Gemeinschaftsraum und die Hauseingänge orientieren, wird er zum ungezwungenen Treffpunkt und bietet Raum für die Kinder zum Spielen. Dem Außenraum kommt bei dieser Art der Bebauung eine besondere Bedeutung zu. Wichtig ist die klare Zuordnung der Flächen und die Verbringung des ruhenden Verkehrs „unter die Erde". Die privaten Gärten sind gegenüber der Straße um ca. 50 cm angehoben und werden durch niedrige Mäuerchen und Hecken gefasst. Sie bieten allen Erdgeschosswohnungen einen geschützten, privaten Gartenbereich mit Terrasse und Pergola.

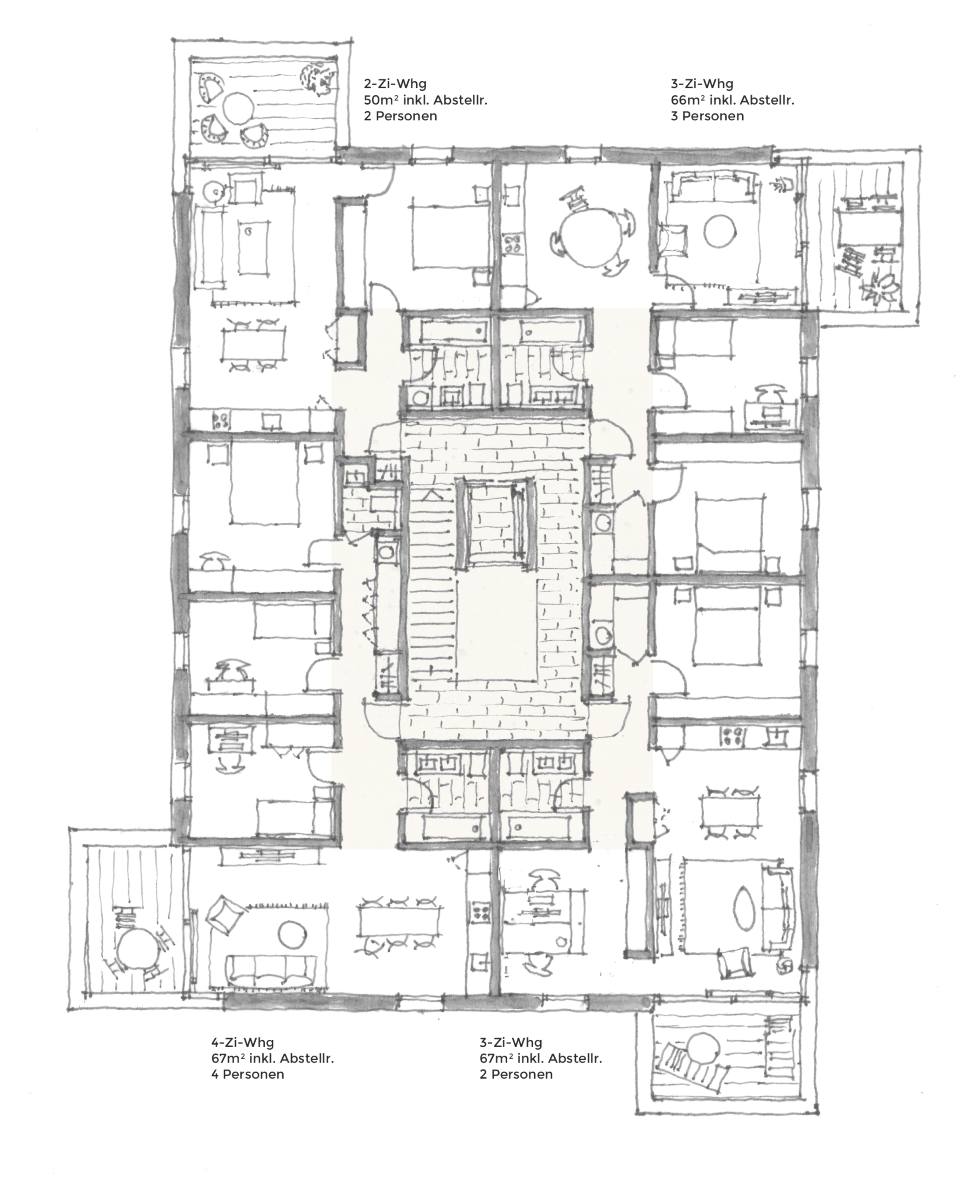
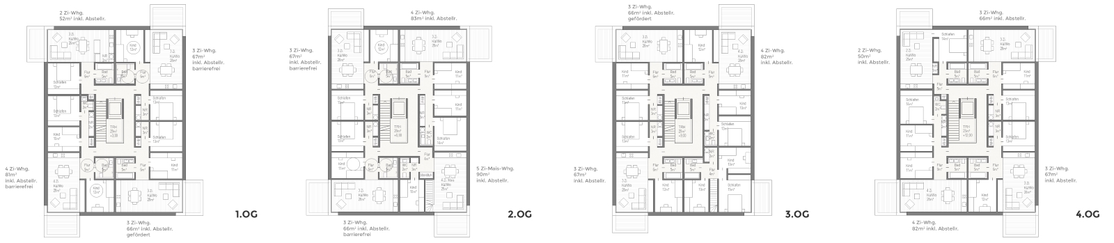
Die drei fünfgeschossigen und das viergeschossige Wohngebäude sind als Punkthäuser mit zentraler Erschließung organisiert. In der Regel werden vier Wohnungen pro Geschoss über einen lichten Hof mit Treppe und Aufzug erschlossen. Der Gebäudegrundriss erscheint als Abfolge konzentrischer Rechtecke. Im inneren Rechteck befindet sich die Eingangshalle mit Treppe und Aufzug als Zentrum. Darum legt sich die Erschließungs- und Installationszone der Wohnungen mit Fluren und Bädern. Darauf folgt eine großzügige Raumzone mit Zimmern, Küchen und Wohnräumen, Balkonen oder Loggien. Auf dieser Grundlage haben wir zwei verschieden Haustypen entwickelt, den Gschosswohnungs-Typ mit davorgehängten Balkonen und den Maisonette-Typ mit eingeschnittenen Loggien.

Der Maisonette-Typ -m Wohnen hoch drei
Das Besondere an diesen Wohnungen sind die räumlichen Bezüge innerhalb der Zweigeschossigkeit. Alle Wohnungen haben zweigeschossige Raumzonen im Innen- oder im Außenbereich. Innerhalb eines räumlichen Systems lassen sich die Wohnungen „zusammenstecken" und ergeben in Summe einen monolithischen Baukörper mit eingeschnittenen Loggien. Das System ist so flexibel, dass auch hier verschiedenen Wohnungsgrößen möglich sind. Alle Wohnungen sind nach zwei Himmelsrichtungen orientiert. Sie werden dadurch gut belichtet und bieten Ausblicke nach zwei Seiten. Zudem ist eine Querlüftung möglich. Allen Wohnungen sind großzügige nahezu quadratische Loggien oder Terrassen zugeordnet. Sie sind gut nutzbar und grenzen nie an einen benachbarten Außenraum, was die Privatsphäre deutlich erhöht. Alle Loggien sind zweigeschossig. Die Zweigeschossigkeit zieht sich bis in die Wohnung und ergibt räumlich Bezüge über die Geschosse hinweg. Die Wohnungen haben dadurch enorme räumliche Qualitäten.

Die kompakten Baukörper und das günstige A-V-Verhältnis sind die beste Voraussetzung, um einen guten KFW-Standard kostengünstig umzusetzen. Außerdem lassen die geringen Spannweiten zwischen den Raumzonen von ca. 4,00 m eine wirtschaftliche Ausführung zu. Die Häuser könnten damit auch in Holzbauweise erstellt werden. Die auskragenden Balkone werden über die bewehrten Deckenstirnelmente aus Beton, die mit den Holz-Beton-Verbunddecken verbunden sind, gehalten.

 

Baufeld D0
Das Baufeld D 0 bildet den südöstlichen Rand des neuen Wohngebiets und liegt gegenüber der Innenstadt von Mühlacker auf der anderen Seite der Bahnlinie auf einer Anhöhe. An dieser Stelle ist die Bebauung zugleich Auftakt und Abschluss der neuen Siedlung und zeichnet eine weithin sichtbare Silhouette. Wir besetzen diesen Rand mit 5 Punkthäusern, einem monolithischen Turm mit eingeschnittenen Loggien und vier horizontal gegliederten Häusern mit weit auskragenden Balkonen. Der scharf geschnittene Monolith bildet den Auftakt und scheint aus der straßenbegleitenden Stützwand des Lebensmittelmarktes herauszuwachsen. Sein Eingang richtet sich zur Kreuzung und zum zentralen Quartiersplatz aus. Es folgen vier Wohnhäuser mit wechselweise weit auskragenden begrünten Balkonen, die für ein sehr differenziertes und lebendiges Erscheinungsbild sorgen. Balkone und Deckenstirn sind aus Beton, die Fassaden dazwischen aus Holz. Die Stützwand und der Monolith würden mit einem hellen Klinker verkleidet werden.
Die vier Häuser werden paarweise jeweils über einen kleinen Hofplatz erschlossen. Der Eingangshof ist ein halböffentlicher Raum, der den Bewohnern zugutekommt. Angelegt als Platz mit Baumgruppe zu dem sich der Gemeinschaftsraum und die Hauseingänge orientieren, wird er zum ungezwungenen Treffpunkt und bietet Raum für die Kinder zum Spielen.

Dem Außenraum kommt bei dieser Art der Bebauung eine besondere Bedeutung zu. Die Atmosphäre der Wohnbebauung hängt stark von der Qualität des Außenraums, seiner Nutzungsangebote und deren tatsächlichen Nutzbarkeit ab. Hier werden Nähe oder Distanz, soziales Miteinander oder Anonymität, Lebendigkeit oder Ruhe angelegt. Wichtig ist die klare Zuordnung der Flächen und die Verbringung des ruhenden Verkehrs „unter die Erde". Die privaten Gärten sind gegenüber der Straße um ca. 50 cm angehoben und werden durch niedrige Mäuerchen und Hecken gefasst. Sie bieten allen Erdgeschosswohnungen einen geschützten, privaten Gartenbereich mit Terrasse und Pergola. Die fünfgeschossigen Wohngebäude sind als Punkthäuser mit zentraler Erschließung organisiert. In der Regel werden vier Wohnungen pro Geschoss über einen lichten Hof mit Treppe und Aufzug erschlossen. Der Gebäudegrundriss erscheint als Abfolge konzentrischer Rechtecke. Im inneren Rechteck befindet sich die Eingangshalle mit Treppe und Aufzug als Zentrum. Darum legt sich die Erschließungs- und Installationszone der Wohnungen mit Fluren und Bädern. Darauf folgt eine großzügige Raumzone mit Zimmern, Küchen und Wohnräumen, Balkonen oder Loggien. Auf dieser Grundlage haben wir zwei verschieden Haustypen entwickelt, den Geschosswohnungs-Typ mit davorgehängten Balkonen und den Maisonette-Typ mit eingeschnittenen Loggien.

Der Geschosswohnungstyp - Das 4-2 3-3 System
Hier kann die äußere Raumzone flexibel eingeteilt werden, da nur die Wände der Erschließungs- und Installationszone und der Außenfassade tragend ausgebildet sind. Aufgrund dieser Konstruktion ist ein flexibler Wohnungsmix möglich. Die Grundlage bilden vier 3-Zimmer-Wohnungen, die pro Geschoss auch in jeweils zwei 4-Zimmer- und zwei 2-Zimmer-Wohnungen aufgeteilt werden können. Wir nennen es das 4-2 3-3 System, mit dem jeder Wohnungsmix möglich ist. Alle Wohnungen sind nach zwei Himmelsrichtungen orientiert. Sie werden dadurch gut belichtet und bieten Ausblicke nach zwei Seiten. Zudem ist eine Querlüftung möglich. Allen Wohnungen sind großzügige nahezu quadratische Balkone oder Terrassen zugeordnet. Sie sind gut nutzbar und grenzen durch das pro Geschoss rotierende Grundrisssystem nie an einen benachbarten Außenraum, was die Privatsphäre deutlich erhöht und immer einen luftigen zweigeschossigen Außenraum bietet, der bei Bedarf mit einer Markise beschattet werden kann.

Die kompakten Baukörper und das günstige A-V-Verhältnis sind die beste Voraussetzung, um einen guten KFW-Standard kostengünstig umzusetzen. Außerdem lassen die geringen Spannweiten zwischen den Raumzonen von ca. 4,00 m eine wirtschaftliche Ausführung zu. Die Häuser könnten damit auch in Holzbauweise erstellt werden. Die auskragenden Balkone werden über die bewehrten Deckenstirnelmente aus Beton, die mit den Holz-Beton-Verbunddecken verbunden sind, gehalten.

Art

Realisierungswettbewerb, 2023

Ort

Mühlacker, Baugebiet Ziegelhöhe

Auslober

Hofkammer Stuttgart

Bearbeitung

M. Dürr | K. Zahorszky | E. Schmitt | C. Süßmann | D. Lahr | P. Baur | S. Mönch

Visualisierung

K. Zahorszky

Platzierung

Preis

Publikationen

competitionline 07.08.2023

wettbewerbe aktuell 09.08.2023