Lern- und Begegnungsort, Graben-Neudorf

Städtebauliche Einfügung

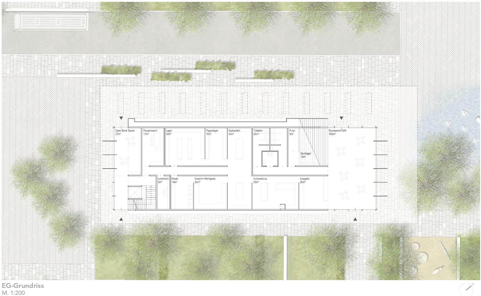
Der Rathausplatz erhält auf der gegenüberliegenden Straßenseite einen neuen, in sich gegliederten Neubau, der sich über seine Positionierung inmitten der Platzfläche als zentralen Ort der Begegnung hervorhebt. Dabei orientiert sich das Gebäude an den Fluchten des Rathauses und des nördlich angrenzenden siebenstöckigen Gebäudekomplexes. So bildet der zweigeschossige Neubau „LeBeN" über seine Gebäudeausrichtung einen zentralen Platz im Norden, der aufgrund der Glasfassade innerhalb des Neubaus optisch weitergeführt wird. Gleichzeitig entsteht über die Gebäudeeinrückung ein kleinerer Platz im südlichen Bereich, welcher als weiterer Aufenthaltsbereich für interne Veranstaltungen genutzt werden kann. Über die zwei neugebildeten Plätze in Kombination mit dem Neubau „LeBeN" wird eine neue Wegeführung vom Bahnhof über das Rathaus hin zum Schulareal geschaffen, die über unterschiedliche Nutzungen attraktiv gestaltet wird. Hierbei dienen Nutzungen wie ein Open-Book-Space, Veranstaltungsräume und ein Café als neue Orte der Begegnung und der Gemeinschaft.

Bürgerzentrum Graben-Neudorf - Alles unter einem Dach

Das Bürgerhaus ordnet durch seine klare Form und die präzise städtebauliche Setzung die heterogene Ortsmitte und schafft damit unterschiedlich bespielbare Freiräume. Das neue Haus steht im Schnittpunkt der Wegeverbindungen zwischen Graben und Neudorf einerseits und zwischen Rathaus und Bahnhof andererseits. Diesem Umstand Rechnung tragend ist es so konzipiert, dass die Wegekreuzung das Gebäude durchzieht, erschließt und erklärt. Das große, alles überlagernde Holzdach, Schattenspender wie Stromerzeuger, symbolisiert den Grundgedanken des inklusiven Konzepts und schafft einen flexibel nutzbaren Möglichkeitsraum, der der Forderung nach variabler Bespielbarkeit sowohl des Innen- wie auch des Außenraumes in besonderer Weise nachkommt. Das Haus öffnet sich über das weit auskragende Dach in alle Richtungen, mit einem Cafébereich, einem Treffpunkt und dem Open-Book-Space; Fassaden werden zum Sitzmöbel, Außen- und Innenraum zu einem fließenden Übergangsbereich. Die beiden Nutzungsebenen werden über eine große Freitreppe und Lufträume miteinander verschränkt. Die unterschiedliche Teilbarkeit der Räume lässt eine intensive Vereins- wie auch die gewünschte Veranstaltungsnutzung zu. Das Gebäude ist als Holzkonstruktion geplant auf einer betonierten Bodenplatte, das weit auskragende Dach als Hohlkastenkonstruktion in Holz auf Stahlstützen. Dabei wird in Druck- und Zugstützen unterschieden. Das langgestreckte Untergeschoss dient als Wiederlager für die Zugstützen. Der vorgelagerte Laubengang mit darunterliegenden Sitznische wird zum Fluchtweg bei großen Veranstaltungen.

Art

Verhandlungsverfahren, 2023

Ort

Graben-Neudorf

Auslober

Stadt Graben-Neudorf

Projektpartner

BHM Planungsgesellschaft

Bearbeitung

H. Baurmann | M. Dürr | G. Sonndag

Visualisierung

Stuchlik 3D