Erweiterung Grundschule, Feldkirchen

Konzept/Städtebau

Die Erweiterung der Grundschule von Feldkirchen folgt der Prämisse des „Weiterbauens" am vorhandenen Bestand. Um die Eingriffe in den Bestand möglichst gering zu halten, wird die Struktur des bestehenden Schulbaus aufgegriffen und um einen neuen, abgerückten Baukörper ergänzt. Dieser bildet einen Abschluss des Schulhofes nach Norden zur Nachbarbebauung. Zwischen Alt- und Neubau entsteht durch das bewusste Abrücken ein Hof, welcher durch die Erschließungsachse in zwei unterschiedlich große Teile geteilt wird: 1. Der größer Bewegungshof zum toben und spielen und 2. der kleinere Ruhehof zum Entspannen.
Architektonisch passt sich der Neubau durch seine Volumetrie, das Satteldach, sowie durch seine Ausrichtung in die Dorfstruktur Feldkirchens ein und bildet somit eine angemessene Erweiterung der gewachsenen Struktur des Ortes.

Grundriss

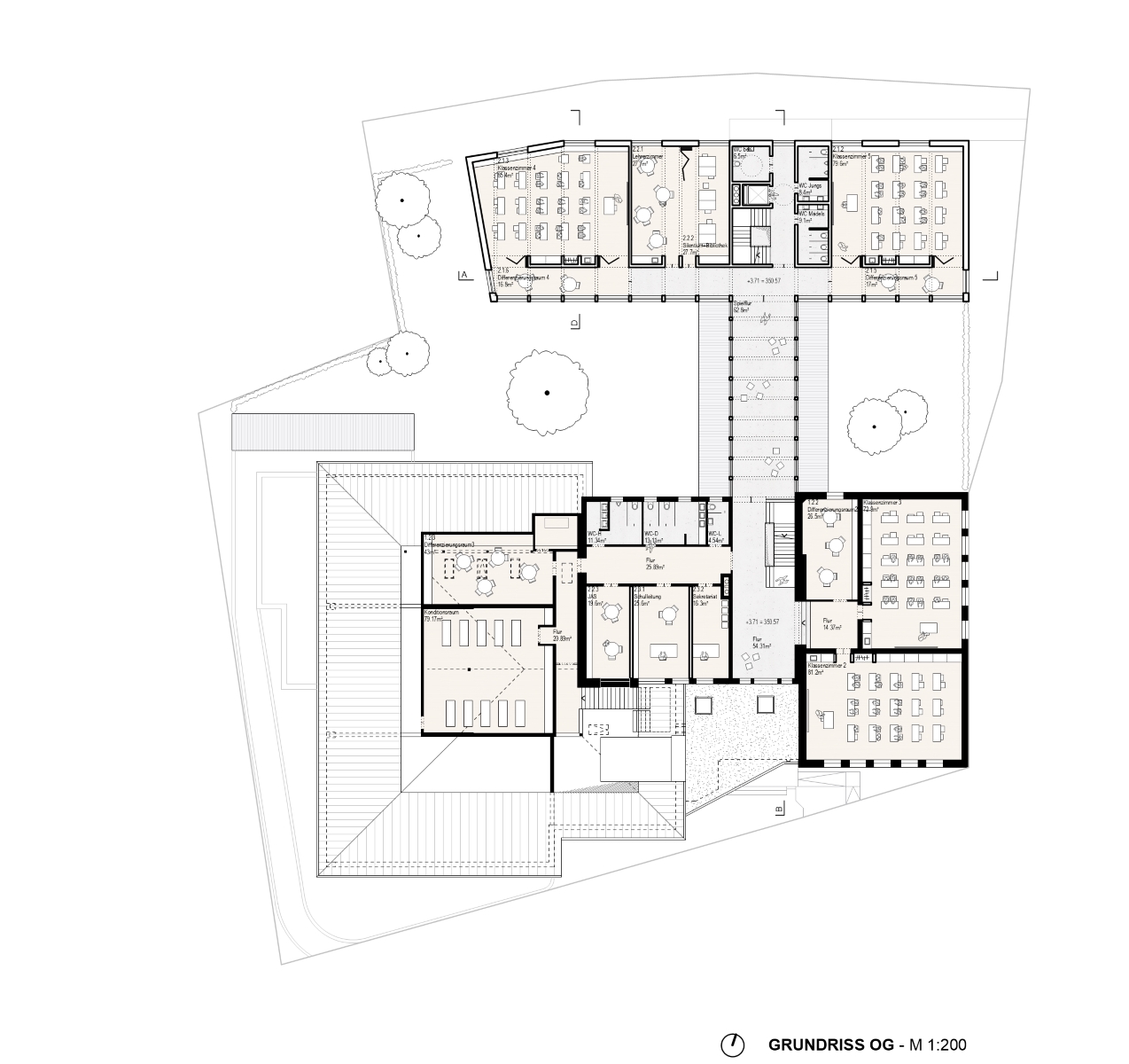
Im Grundriss folgt die Erweiterung der Logik des Bestandes: Die bereits bestehende Erschließungsachse wird durch einen Verbindungsgang erweitert und endet im neuen Schulhaus mit dem neuen Treppenhaus. Dieses Treppenhaus sichert mit dem neuen Aufzug zugleich die Barrierefreiheit für den Neu- und Altbau.
Die Erschließung der Räume des Neubaus erfolgt über einen auf der Südseite liegenden Flur, welche an den Enden des Gebäudes in die großen Räume, wie Klassenzimmer etc. übergeht. Die Differenzierungräume bilden dabei eine Art Vorzone aus, welche flexibel bespielt werden kann.
Im Erdgeschoss des Neubaus befinden sich die übergeordneten Räume (Speiseraum und Gruppenraum. Diese sind sowohl vom Eingang aber auch vom Pausenhof aus gut erreichbar.
Die Klassenzimmer verteilen sich auf die beiden Obergeschosse.
Um eine optimale Kommunikation zwischen den Lehrkräften zu vereinfachen, befinden sich sowohl das Lehrerzimmer, als auch die Schulleitung samt Sekretariat im ersten Obergeschoss.
Den Abschluss im neuen Schulhaus bildet im zweiten Obergeschoss der Musikraum.

Konstruktion

Ausgehend von dem Gedanken der Nachhaltigkeit wurde versucht, dass Tragwerk des Neubaus auf ein Minimum zu reduzieren. Dabei bilden Holzrahmen, stehend auf einem Stahlbetonsockel, das Haupttragwerk. Diese werden durch einen Stahlbetonkern (Treppenhaus und Aufzug) unterstützt. Die Holzrahmen orientieren sich dabei an einem klaren Raster, welches sich durch alle Geschosse zieht und eine flexible Aufteilung des Baukörpers zulässt.
Auch die Decken können durch das gewählte Raster auf ein Minimum reduziert und als Holzverbunddecke ausgeführt werden. Die Deckenplatte bleibt dabei an den beiden Stirnseiten ablesbar.

Materialität

Durch das sichtbare Tragwerk dominieren im Innenraum warme Holztöne. Dieses werden durch die Sichtbetonflächen der Decken, sowie des Kerns ergänzt.
Die Materialwahl des Bodens spiegelt die einzelnen Nutzungen des neuen Baukörpers wider. In den Bewegungsflächen, wie den Fluren und dem Kern, wird ein Estrich verlegt, in den Aufenthaltsräumen, den Klassenzimmern, dem Speiseraum, dem Gruppenraum, aber auch im Lehrerzimmer, wird angelehnt an den Bestand, Parkett verlegt.
Akzentuiert wird das Gesamtbild aus Holz und Beton durch die beiden Putzfassaden an den Stirnseiten und den farbigen Jalousien auf der Südseite, in Richtung des Hofes. Diese farbigen Jalousien geben dem sehr geradlinigen Gebäude eine verspielte Note und Stärken die Wichtigkeit des neu geschaffenen Hofes.

Nachhaltigkeit

Um auch dem Nachhaltigkeitsgedanken gerecht werden zu können, besteht fast der gesamte Neubau aus Holz. Dies beschränkt sich nicht nur auf die Fassade, sondern setzt sich auch im Tragwerk des Gebäudes fort. Des Weiteren wurde der Anteil an Stahlbeton auch ein Minimum reduziert.

Technik

Um die Energieversorgung des Schulensembles zu sichern wird das neue Schulhaus teilunterkellert, um dort Platz für eine Hackschnitzelanlage zu schaffen. Zu vereinfachten Anlieferung des Hackschnitzel, gibt es auf der Ostseite des Gebäudes einen Einfüllschacht, welcher direkt von der Straße aus zu erreichen ist.

Art

Realisierungswettbewerb, 2021

Ort

Feldkirchen

Auslober

Gemeinde Feldkirchen

Bearbeitung

H. Baurmann | M. Dürr | J. Zink

Fachberater

SETUP Landschaftsarchitektur

Modellbau

V. Söllner

Platzierung

Anerkennung

Publikationen

competitionline 25.11.2021

wettbewerbe aktuell 07.12.2021